Prix
128 880€
Type
Appt. au 4ème
Pièces
Studio
Surface
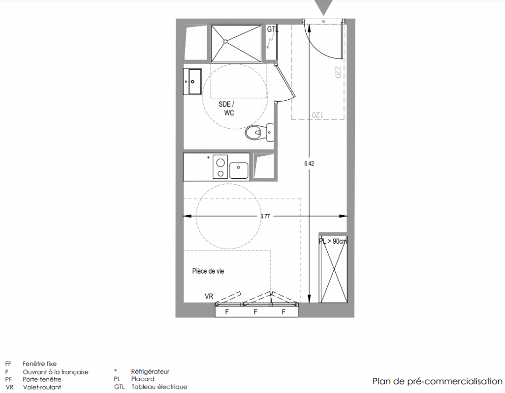
22.57 m²
Exposition
Sud
Ville
Quetigny (21800)
Livraison
2ème trimestre 2028
Informations
01 81 80 39 10

Présentation du programme "Campus Vatel - Residence Enita"

Investissez à Quetigny, une métropole attractive, connectée et reconnue pour son cadre de vieQuetigny bénéficie d'une situation stratégique aux portes de Dijon, au sein d'une métropole dynamique reconnue pour sa double inscription à l'UNESCO, ses vignobles et sa gastronomie.La ville profite d'une excellente accessibilité, notamment grâce au TGV reliant Paris en 1h40 et à son positionnement au carrefour des principaux axes autoroutiers et ferroviaires, ce qui renforce son attractivité auprès des actifs mobiles.Quetigny s'inscrit dans un territoire offrant une qualité de vie élevée, porté par un patrimoine historique majeur avec 97 ha de centre ancien et 3 000 monuments classés. Un bassin étudiant et économique solide, générateur d'une forte demande locativeLe secteur bénéficie d'un bassin étudiant structurant de 37 000 étudiants, dont 10 % d'internationaux, ainsi que de 8 000 salariés du CHU.Dijon Métropole repose sur quatre pôles d'excellence qui génèrent des emplois qualifiés et soutiennent le dynamisme local : mécanique/électronique, emballage/conditionnement, santé-pharmacie et agroalimentaire.La présence d'entreprises d'envergure internationale telles que Merck, Urgo, Adhex Santé ou Recipharm renforce l'attractivité du territoire auprès des étudiants, jeunes actifs et salariés en mobilité. Commodités et transportsLa résidence se situe à 700 m du cœur de ville de Quetigny et à 5 minutes à pied de la station de tramway T1 «Quétigny Centre», permettant de rejoindre le campus universitaire de Dijon en seulement 9 minutes.Le quartier bénéficie d'une desserte efficace grâce à plusieurs lignes de bus, aux grands axes routiers (A6, A36, A31, A39) et à la proximité de la gare TGV de Dijon, connectée aux aéroports internationaux de Paris, Lyon, Bâle-Mulhouse et Genève.Les résidents profitent d'un environnement riche en services, avec le centre commercial Grand Quetigny (70 boutiques) à 2 minutes en voiture, ainsi que la présence d'établissements scolaires et de formation tels que le CFA, le CFPPA ou le lycée agricole. Focus prestations/résidenceLa résidence Enita comprend des logements en coliving destinés aux étudiants et jeunes actifs, principalement composés de T1, offrant un cadre de vie fonctionnel et moderne. Les aménagements ont été conçus pour offrir confort et praticité au quotidien, en intégrant des espaces optimisés et en garantissant une proximité immédiate avec les commerces, établissements scolaires et transports. Le + du programme Un emp...

Autres logements Studio du programme "Campus Vatel - Residence Enita"

Disponibilité Prix Genre Pièces Surface Étage
Voir
Disponible
99 330€ Appt. Studio 18.09m2 2ème
Voir
Disponible
99 330€ Appt. Studio 18.09m2 2ème
Voir
Disponible
99 540€ Appt. Studio 18.13m2 2ème
Voir
Disponible
99 540€ Appt. Studio 18.13m2 2ème
Voir
Disponible
101 250€ Appt. Studio 18.44m2 2ème
Voir
Disponible
101 250€ Appt. Studio 18.44m2 2ème
Voir
Disponible
101 250€ Appt. Studio 18.44m2 2ème
Voir
Disponible
101 550€ Appt. Studio 18.13m2 3ème
Voir
Disponible
101 550€ Appt. Studio 18.13m2 3ème
Voir
Disponible
101 550€ Appt. Studio 18.13m2 3ème
Voir
Disponible
102 000€ Appt. Studio 18.21m2 3ème
Voir
Disponible
103 290€ Appt. Studio 18.44m2 3ème
Voir
Disponible
103 290€ Appt. Studio 18.44m2 3ème
Voir
Disponible
103 530€ Appt. Studio 18.13m2 4ème
Voir
Disponible
103 530€ Appt. Studio 18.13m2 4ème
Voir
Disponible
103 530€ Appt. Studio 18.13m2 4ème
Voir
Disponible
103 980€ Appt. Studio 18.21m2 4ème
Voir
Disponible
104 310€ Appt. Studio 19m2 2ème
Voir
Disponible
104 310€ Appt. Studio 19m2 2ème
Voir
Disponible
104 310€ Appt. Studio 19m2 2ème
Voir
Disponible
104 310€ Appt. Studio 19m2 2ème
Voir
Disponible
104 310€ Appt. Studio 19m2 2ème
Voir
Disponible
104 310€ Appt. Studio 19m2 2ème
Voir
Disponible
104 310€ Appt. Studio 19m2
Le bon plan
2ème
Voir
Disponible
104 310€ Appt. Studio 19m2 2ème
Voir
Disponible
104 910€ Appt. Studio 18.73m2 3ème
Voir
Disponible
104 910€ Appt. Studio 18.73m2 3ème
Voir
Disponible
105 210€ Appt. Studio 19.16m2 2ème
Voir
Disponible
105 210€ Appt. Studio 19.16m2 2ème
Voir
Disponible
105 210€ Appt. Studio 19.16m2 2ème
Voir
Disponible
105 210€ Appt. Studio 19.16m2 2ème
Voir
Disponible
105 210€ Appt. Studio 19.16m2 2ème
Voir
Disponible
105 210€ Appt. Studio 19.16m2 2ème
Voir
Disponible
105 210€ Appt. Studio 19.16m2 2ème
Voir
Disponible
106 410€ Appt. Studio 19m2 3ème
Voir
Disponible
106 410€ Appt. Studio 19m2 3ème
Voir
Disponible
106 410€ Appt. Studio 19m2 3ème
Voir
Disponible
106 410€ Appt. Studio 19m2 3ème
Voir
Disponible
106 410€ Appt. Studio 19m2 3ème
Voir
Disponible
106 410€ Appt. Studio 19m2 3ème
Voir
Disponible
106 410€ Appt. Studio 19m2 3ème
Voir
Disponible
106 410€ Appt. Studio 19m2 3ème
Voir
Disponible
106 410€ Appt. Studio 19m2 3ème
Voir
Disponible
106 410€ Appt. Studio 19m2 3ème
Voir
Disponible
106 950€ Appt. Studio 18.73m2 4ème
Voir
Disponible
106 950€ Appt. Studio 18.73m2 4ème
Voir
Disponible
106 950€ Appt. Studio 18.73m2 4ème
Voir
Disponible
106 950€ Appt. Studio 18.73m2 4ème
Voir
Disponible
107 310€ Appt. Studio 19.16m2 3ème
Voir
Disponible
107 310€ Appt. Studio 19.16m2 3ème
Voir
Disponible
107 310€ Appt. Studio 19.16m2 3ème
Voir
Disponible
108 510€ Appt. Studio 19m2 4ème
Voir
Disponible
108 510€ Appt. Studio 19m2 4ème
Voir
Disponible
108 510€ Appt. Studio 19m2 4ème
Voir
Disponible
108 510€ Appt. Studio 19m2 4ème
Voir
Disponible
108 510€ Appt. Studio 19m2 4ème
Voir
Disponible
108 510€ Appt. Studio 19m2 4ème
Voir
Disponible
108 510€ Appt. Studio 19m2 4ème
Voir
Disponible
108 510€ Appt. Studio 19m2 4ème
Voir
Disponible
109 410€ Appt. Studio 19.16m2 4ème
Voir
Disponible
109 410€ Appt. Studio 19.16m2 4ème
Voir
Disponible
109 410€ Appt. Studio 19.16m2 4ème
Voir
Disponible
109 410€ Appt. Studio 19.16m2 4ème
Voir
Disponible
109 410€ Appt. Studio 19.16m2 4ème
Voir
Disponible
118 830€ Appt. Studio 21.64m2 2ème
Voir
Disponible
119 430€ Appt. Studio 21.75m2 2ème
Voir
Disponible
119 430€ Appt. Studio 21.75m2 2ème
Voir
Disponible
121 800€ Appt. Studio 21.75m2 3ème
Voir
Disponible
121 800€ Appt. Studio 21.75m2 3ème
Voir
Disponible
122 820€ Appt. Studio 21.93m2 3ème
Voir
Disponible
123 930€ Appt. Studio 22.57m2 2ème
Voir
Disponible
125 220€ Appt. Studio 21.93m2 4ème
Voir
Disponible
126 420€ Appt. Studio 22.57m2 3ème
DO NOT CLICK