307 000€ (TVA 20%)
269 904€ (TVA 5.5%)
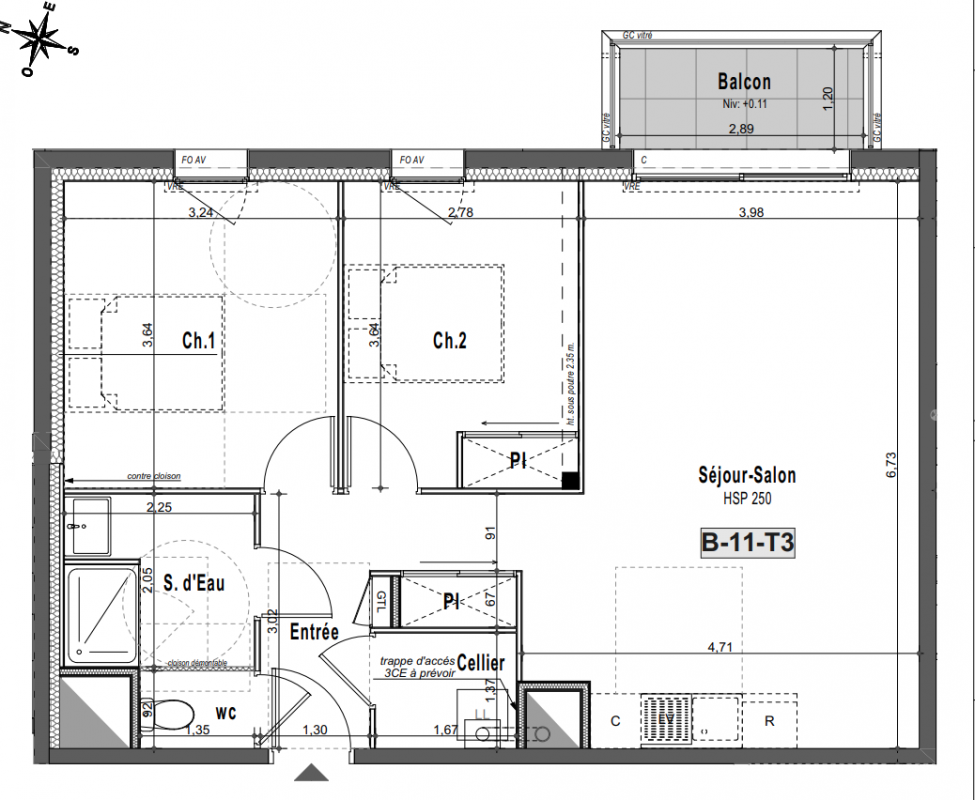
Appt. au 1er
T3
64.76 m²
Est
Saint-Malo (35400)
4ème trimestre 2027
01 81 80 39 10
Présentation du programme "EMERALIA"
OFFRE EXCEPTIONNELLE : APPARTEMENTS T2: Baisse de prix + 0€ frais de notaire* !Découvrez EMERALIA, une nouvelle résidence intimiste de 30 logements, répartis sur 2 bâtiments, située dans le quartier de l'hippodrome de Saint-Malo. A l'angle des rues Fouquet et des Antilles, cette résidence propose des appartements lumineux du 2 au 6 pièces duplex aux prestations soignées, avec de beaux espaces extérieurs pour chaque logement, un parking sécurisé ainsi qu'un local à vélos.Profitez d'un cadre de vie dynamique, à quelques pas des commerces, services et transports en commun. Ici, on aime l'environnement exceptionnel à proximité de la ville, des plages et de l'intra-muros, accessible en 10 minutes de bus ou de vélo !Vous souhaitez acheter un appartement neuf à Saint-Malo ? Grâce à la TVA réduite à 5,5% et au Prêt à Taux Zéro 0%, devenez propriétaire + facilement ! (sous conditions d'éligibilité et de ressources). Tarif indiqué en TVA 5.5% pour propriétaire occupant exclusivement.Certains prix sont diffusés en TVA à 20%, d'autres en TVA réduite à 5.5%. Voir détails sur emerali-saint-malo.fr. Le prix indiqué en TVA à taux réduit à 5,5% s'applique dans le cadre d'une acquisition exclusivement en résidence principale et est soumis à des conditions d'éligibilité et de ressources. Voir conditions auprès des conseillers commerciaux.*Voir conditions de l'offre sur EMERALIA-saint-malo.fr
Autres logements T3 du programme "EMERALIA"
| Disponibilité | Prix | No | Genre | Pièces | Surface | Étage | Disponibilité | Prix | ||
|---|---|---|---|---|---|---|---|---|---|---|
| Voir | Disponible | 316 000€ | A11 | Appt. | T3 | 64.37m2 | 1er | Disponible | 316 000€ | Voir |
| Voir | Disponible | 386 000€ | A15 | Appt. | T3 | 77.76m2 | 1er | Disponible | 386 000€ | Voir |
| Voir | Disponible | 329 000€ | A21 | Appt. | T3 | 64.52m2 | 2ème | Disponible | 329 000€ | Voir |
| Voir | Disponible | 403 000€ | A25 | Appt. | T3 | 81.49m2 | 2ème | Disponible | 403 000€ | Voir |
| Voir | Disponible | 354 000€ | A31 | Appt. | T3 | 64.61m2 | 3ème | Disponible | 354 000€ | Voir |
| Voir | Disponible | 346 000€ | A32 | Appt. | T3 | 60.45m2 | 3ème | Disponible | 346 000€ | Voir |
| Voir | Disponible | 413 000€ | A34 | Appt. | T3 | 81.44m2 | 3ème | Disponible | 413 000€ | Voir |
| Voir | Disponible | 376 000€ | B21 | Appt. | T3 | 67.8m2 | 2ème | Disponible | 376 000€ | Voir |