Prix
290 000€
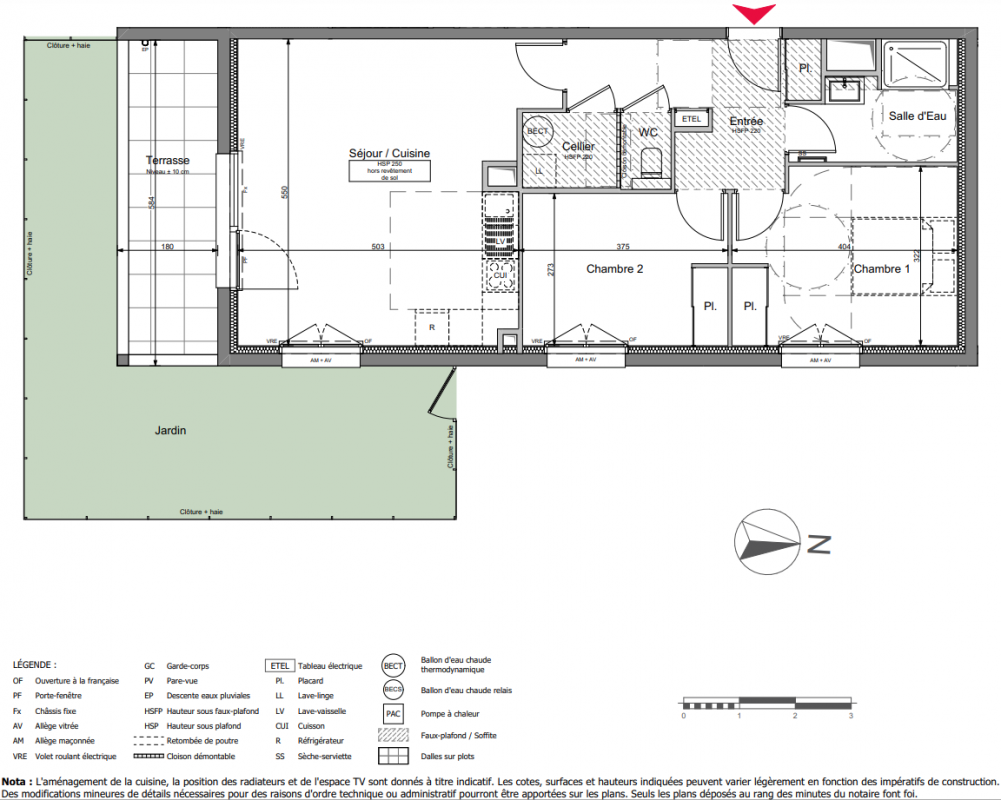
Type
Appt. au 0-RDC
Pièces
T3
Surface
67.52 m²
Exposition
-
Ville
Séné (56860)
Livraison
1er trimestre 2028
Informations
01 81 80 39 10

Présentation du programme "ÉCHO"

[ LANCEMENT AUX PORTES DE VANNES ] Profitez de notre OFFRE DE LANCEMENT : FRAIS DE NOTAIRE OFFERTS sur les 5 premières réservations* !

À Séné, une résidence d'appartements neufs s’implante route du Versa, au sein d’un environnement résidentiel déjà aménagé. Cette adresse bénéficie d’une situation pratique, à proximité immédiate de la zone commerciale du Poulfanc, d’écoles et des transports en commun, avec une ligne de bus accessible à quelques minutes à pied reliant le centre de Vannes en environ 15 minutes. La gare de Vannes se situe à une dizaine de minutes en voiture, tandis que les axes routiers permettent un accès rapide vers Rennes, Nantes, Lorient et Quimper.

La résidence ÉCHO se compose d’un petit collectif de seulement 23 appartements du 2 au 4 pièces, répartis dans un bâtiment à taille humaine, en cohérence avec le quartier environnant.
Chaque logement bénéficie d’un espace extérieur privatif – jardin, balcon, loggia ou terrasse – prolongeant les espaces de vie. L’architecture contemporaine associe des enduits clairs, des garde-corps en bois, des menuiseries gris anthracite, apportant une écriture sobre et qualitative à l’ensemble.
Les prestations intérieures offrent un niveau de confort et de fonctionnalité adapté aux usages actuels.

SPÉCIAL INVESTISSEURS – Profitez du nouveau Dispositif JEANBRUN : optimisez votre fiscalité et accélérez votre patrimoine.
À seulement 15 minutes des plages et 10 minutes du centre-ville de Vannes, la résidence ÉCHO propose un cadre de vie équilibré entre littoral, dynamisme urbain et quotidien facilité.

Contactez nos conseillers Lamotte à Vannes ou rendez-vous sur Vianova.fr pour en savoir plus.


*Voir conditions de l'offre sur notre site Lamotte.fr

Autres logements T3 du programme "ÉCHO"

Disponibilité Prix Genre Pièces Surface Étage
Voir
Disponible
287 000€ Appt. T3 62.79m2 0-RDC
Voir
Disponible
284 000€ Appt. T3 61.6m2 0-RDC
Voir
Disponible
277 000€ Appt. T3 59.49m2
Le bon plan
0-RDC
Voir
Disponible
283 000€ Appt. T3 58.98m2 0-RDC
Voir
Disponible
299 000€ Appt. T3 66.77m2 0-RDC
Voir
Disponible
295 000€ Appt. T3 62.79m2 1er
Voir
Disponible
292 000€ Appt. T3 61.6m2 1er
Voir
Disponible
282 000€ Appt. T3 59.48m2 1er
Voir
Disponible
288 000€ Appt. T3 58.69m2 1er
Voir
Disponible
307 000€ Appt. T3 66.77m2 1er
Voir
Disponible
295 000€ Appt. T3 60.94m2 2ème
DO NOT CLICK