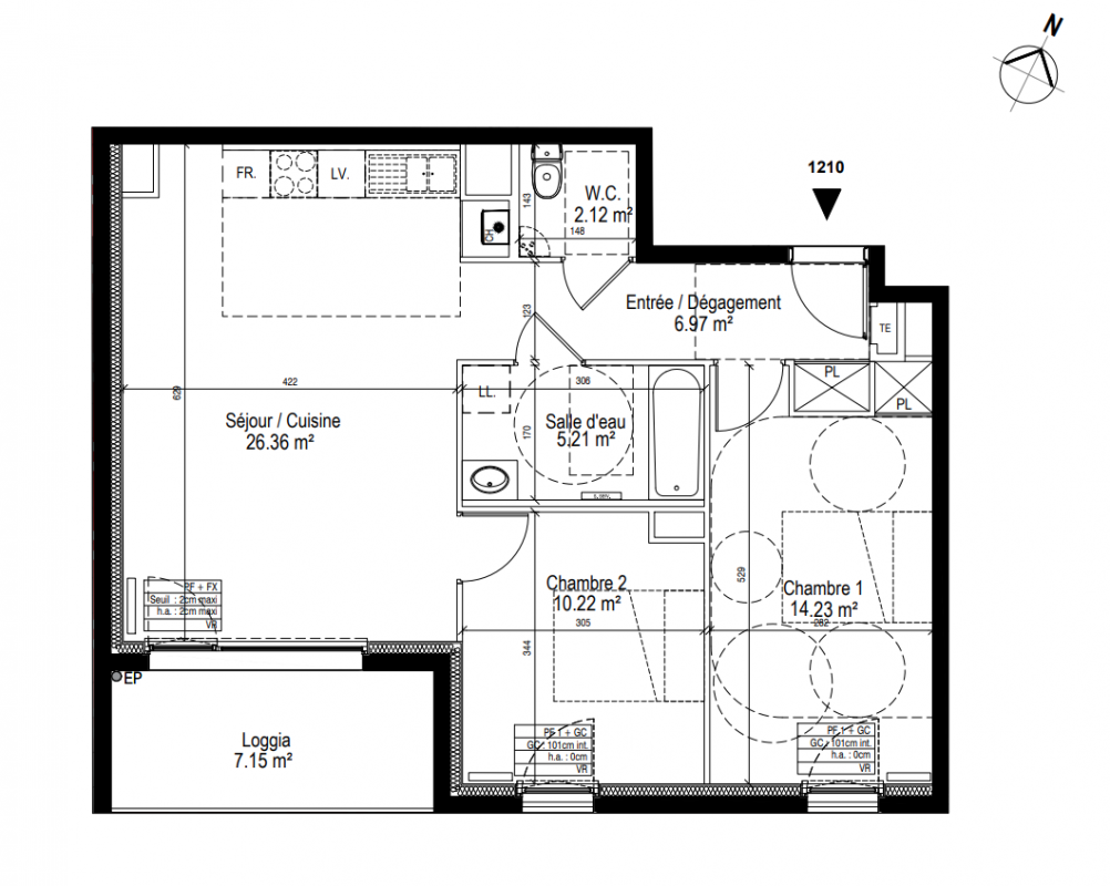
Prix
216 350€
Type
Appt. au 2ème
Pièces
T3
Surface
65 m²
Exposition
Sud-Est
Ville
Nancy (54100)
Livraison
2ème trimestre 2026
Informations
01 81 80 39 10

Présentation du programme "LIBERTY"

Autres logements T3 du programme "LIBERTY"

Pas de logements disponibles
DO NOT CLICK