Ce lot n’est plus disponible chez VIANOVA ou est vendu.

Vous pouvez revenir dans 24h pour vérifier le stock à jour ou contacter un conseiller Vianova pour vérifier le stock en direct.
Vous pouvez également continuer votre recherche sur notre site « ici ».

Prix
230 599€  (TVA 20%)
202 735€  (TVA 5.5%)
Type
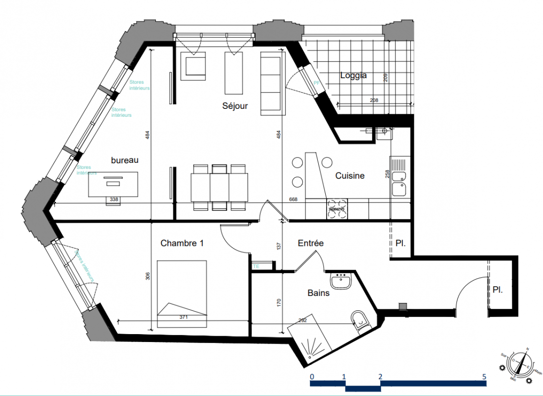
Appt. au 2ème
Pièces
T3
Surface
68 m²
Exposition
Sud-Ouest
Ville
Tourcoing (59200)
Livraison
4ème trimestre 2026
Informations
01 81 80 39 10

Présentation du programme "LA FABRIK"

Choisissez d'habiter un lieu emblématique, témoin du passé industriel de Tourcoing, aujourd'hui réinventé en un quartier vert et vivant : LA FABRIK.
Cette adresse unique propose deux derniers appartements neufs de 4 et 5 pièces, parfaits pour la vie de famille. Spacieux, lumineux et bien agencés, ils offrent un cadre de vie agréable, avec pour certains un espace extérieur. Le parking est inclus pour chaque logement.
Ce programme est éligible à la TVA réduite à 5,5%. Renseignez-vous !




Pour toutes informations complémentaires, prenez contact avec nous !

Autres logements T3 du programme "LA FABRIK"

Disponibilité Prix Genre Pièces Surface Étage
Voir
Disponible
207 600€ Appt. T3 65m2 0-RDC
Voir
Disponible
207 600€ Appt. T3 64m2 0-RDC
DO NOT CLICK