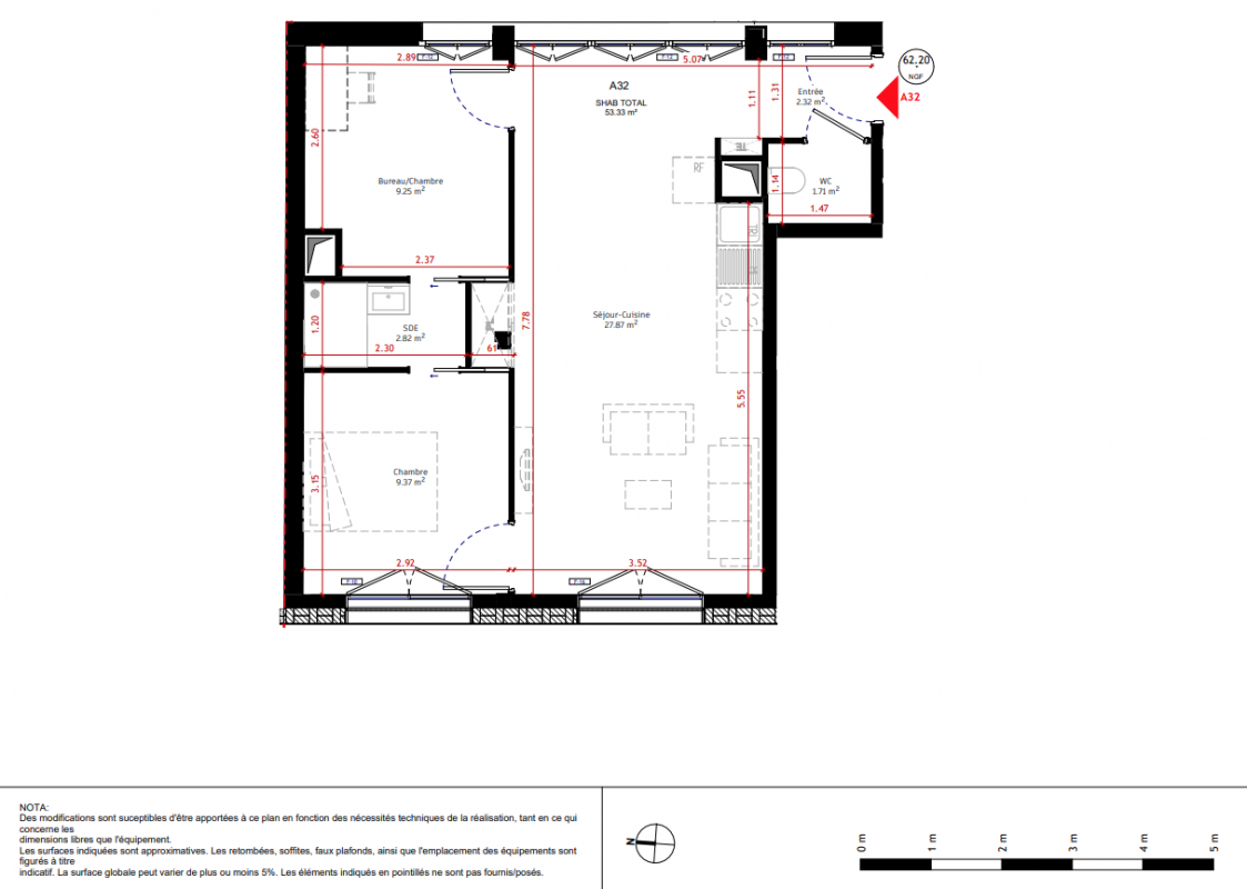
Prix
732 000€
Type
Appt. au 3ème
Pièces
T3
Surface
53.33 m²
Exposition
-
Ville
Paris 13ème (75013)
Livraison
3ème trimestre 2027
Informations
01 81 80 39 10

Présentation du programme "PASSAGE FOUBERT"

Niché entre Maison-Blanche et Les Peupliers, le passage cultive une atmosphère paisible,à l'écart de l'agitation.

Autres logements T3 du programme "PASSAGE FOUBERT"

Disponibilité Prix Genre Pièces Surface Étage
Voir
Disponible
705 000€ Appt. T3 53.97m2 1er
Voir
Disponible
715 000€ Appt. T3 54.02m2 2ème
DO NOT CLICK