Prix
147 583€
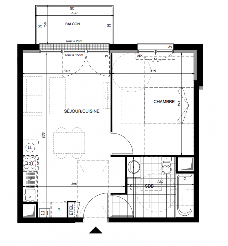
Type
Appt. au 2ème
Pièces
T2
Surface
40 m²
Exposition
Nord
Ville
Provins (77160)
Livraison
2ème trimestre 2026
Informations
01 81 80 39 10

Présentation du programme "RUELLE AUX VIGNES"

Autres logements T2 du programme "RUELLE AUX VIGNES"

Disponibilité Prix Genre Pièces Surface Étage
Voir
Optionné
156 750€ Appt. T2 45m2 2ème
Voir
Disponible
153 083€ Appt. T2 46m2 1er
DO NOT CLICK