Prix
450 427€
450 427€
Type
Appt. au 1er
Appt. au 1er
Pièces
T3
T3
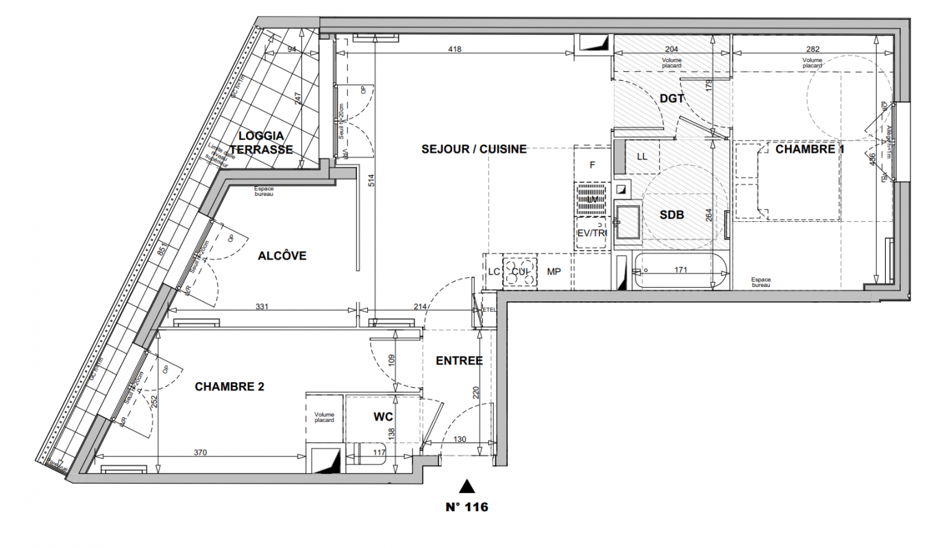
Surface
65.66 m²
65.66 m²
Exposition
Est
Est
Ville
Bagnolet (93170)
Bagnolet (93170)
Livraison
4ème trimestre 2028
4ème trimestre 2028
Informations
01 81 80 39 10
01 81 80 39 10
Présentation du programme "LE 5 RASPAIL"
Aux portes de Paris, entre les lignes 3 et 11 du métro, découvrez une résidence contemporaine tout en élégance et lumière. Les appartements, du studio au 5 pièces, bénéficient de larges ouvertures et se prolongent de balcons, terrasses filantes ou solariums exclusifs. Leurs plans fluides et optimisés répondent à tous les styles de vie, intégrant, pour certains, des alcôves évolutives pour encore plus de liberté d’agencement.À distance piétonne des commerces, des écoles et du métro, profitez d’un quotidien simple, pratique et dynamique, dans une commune de l’est parisien en plein essor.
Autres logements T3 du programme "LE 5 RASPAIL"
| Disponibilité | Prix | No | Genre | Pièces | Surface | Étage | Disponibilité | Prix | ||
|---|---|---|---|---|---|---|---|---|---|---|
| Voir | Disponible | 439 052€ | 135 | Appt. | T3 | 65.76m2 | 3ème | Disponible | 439 052€ | Voir |
| Voir | Disponible | 433 365€ | 126 | Appt. | T3 | 65.76m2 | 2ème | Disponible | 433 365€ | Voir |
| Voir | Optionné | 460 664€ | 161 | Appt. | T3 | 58.41m2 | 6ème | Optionné Mais pas encore vendu 😉 | 460 664€ | Voir |