Prix
424 265€
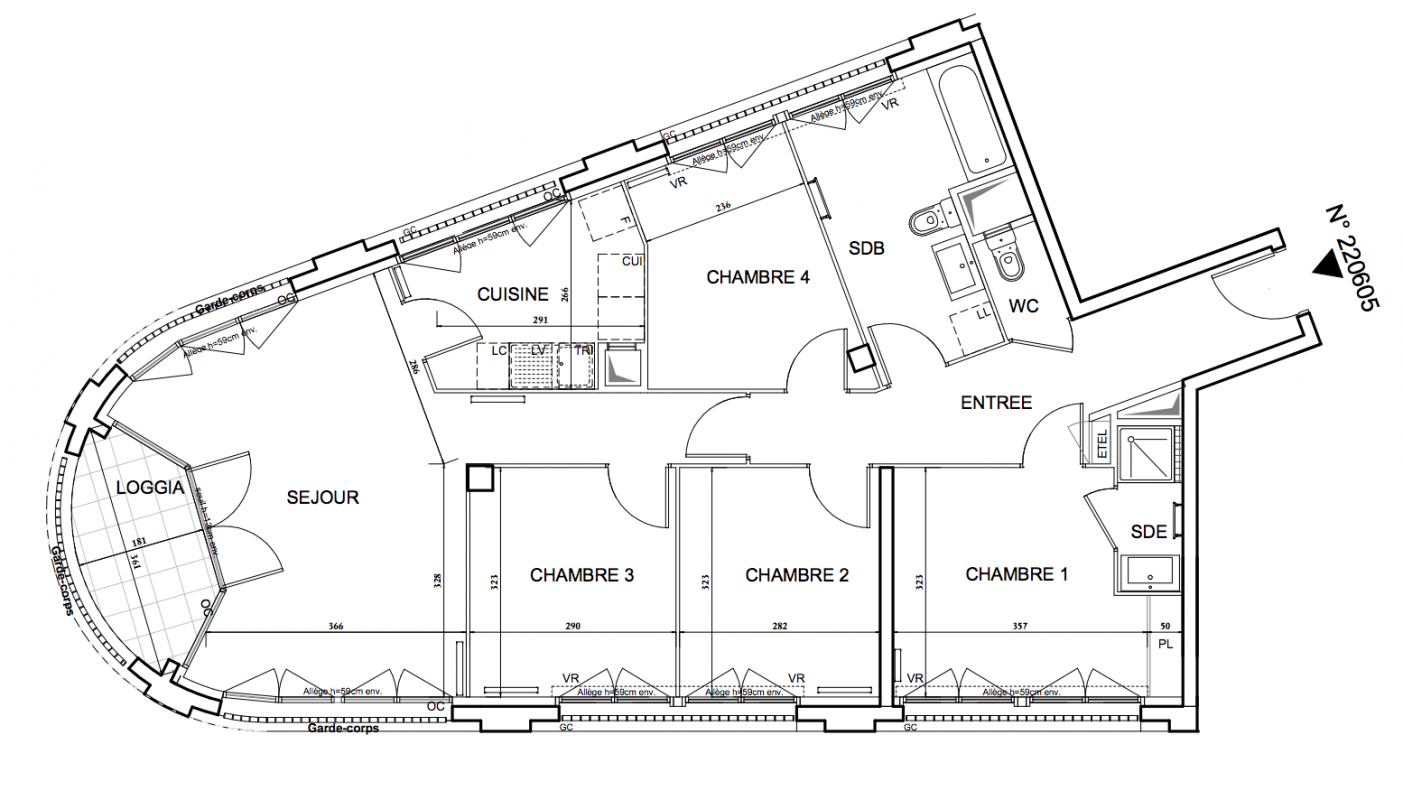
Type
Appt. au 6ème
Pièces
T5
Surface
94.02 m²
Exposition
Sud
Ville
Bobigny (93000)
Livraison
3ème trimestre 2024
Informations
01 81 80 39 10

Présentation du programme "Coeur de ville {Hall Plaza & Lumin}"

Pour votre investissement immobilier, optez pour une adresse innovante et attractive, à seulement 5 km des portes de Paris. Dans le sillage de ses voisines, Pantin et Montreuil, Bobigny vit une métamorphose urbaine de grande envergure. Entièrement remodelé par Altarea Vianova, son nouveau centre-ville vous assure des perspectives de rentabilité et de valorisation exceptionnelles.
Le nouvel écoquartier «?Cœur de Ville?» se dévoile entre la mairie et la préfecture et au pied de tous les transports. Pensé comme une promenade urbaine aérée et verdoyante, avec ses venelles piétonnes qui rayonnent à partir de la place centrale, il répond aux attentes de vie de quartier et de convivialité. Il saura séduire de nombreux profils de locataires, vous assurant rentabilité et facilité de gestion. Particulièrement dynamique, l’écoquartier accueillera 10?000 m2 de bureaux, une crèche, des commerces de proximité, des restaurants et un cinéma. Desservie par la ligne 5 du métro, le tramway T1 et de nombreuses lignes de bus, l’adresse profitera également de la ligne 15 du Grand Paris Express à horizon 2030.

Logements, espaces verts, commerces de proximité et activités de loisirs, habitez un lieu de vie serein et convivial. À quelques pas de tous les transports en commun, cette adresse est parfaitement connectée à la capitale et à la petite couronne.

TVA réduite * : éligible pour les 3 pièces, 4 pièces et 5 pièces avec ou sans alcôves  (pour plus d'informations, contactez votre responsable prescription).

Autres logements T5 du programme "Coeur de ville {Hall Plaza & Lumin}"

Pas de logements disponibles
DO NOT CLICK