Ce lot n’est plus disponible chez VIANOVA ou est vendu.
Vous pouvez revenir dans 24h pour vérifier le stock à jour ou contacter un conseiller Vianova pour vérifier le stock en direct.
Vous pouvez également continuer votre recherche sur notre site « ici ».
347 750€
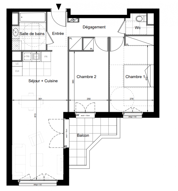
Appt. au 3ème
T3
66.8 m²
-
Le Blanc-Mesnil (93150)
2ème trimestre 2027
01 81 80 39 10
Présentation du programme "NEXIS"
La Résidence
La résidence "NEXIS" est une adresse élégante et contemporaine idéalement située au cœur du Blanc-Mesnil, sur la dynamique avenue du 8 mai 1945. Ce programme immobilier neuf propose des logements de standing conçus pour répondre aux besoins des familles, des jeunes actifs et des investisseurs.
À seulement 10 km de Paris, la résidence bénéficie d'appartements du studio au 5 pièces à proximité immédiate des commerces, écoles, équipements culturels et espaces verts qui font du Blanc-Mesnil une ville en plein essor.
Les atouts
Des appartements lumineux et bien agencés, avec des prestations modernes et de qualité
Des balcons, terrasses ou jardins privatifs pour chaque logement
Des espaces extérieurs
Espaces communs soignés et verdoyants pour un environnement calme et familial
Résidence sécurisée avec digicode et vidéophone
Parkings privatifs en sous-sol
A proximité
RER : Ligne B
Bus : Lignes : 148, 151, 152, 247, 251, 346 et 350
Autres logements T3 du programme "NEXIS"
| Disponibilité | Prix | No | Genre | Pièces | Surface | Étage | Disponibilité | Prix | ||
|---|---|---|---|---|---|---|---|---|---|---|
| Voir | Archivé | 357 750€ | A001 | Appt. | T3 | 66.1m2 Le bon plan | 0-RDC | Archivé | 357 750€ | Voir |
| Voir | Archivé | 332 750€ | A101 | Appt. | T3 | 67.7m2 | 1er | Archivé | 332 750€ | Voir |
| Voir | Archivé | 337 750€ | A105 | Appt. | T3 | 66.6m2 | 1er | Archivé | 337 750€ | Voir |
| Voir | Archivé | 307 750€ | A106 | Appt. | T3 | 60.9m2 | 1er | Archivé | 307 750€ | Voir |
| Voir | Archivé | 342 750€ | A201 | Appt. | T3 | 67.7m2 | 2ème | Archivé | 342 750€ | Voir |
| Voir | Archivé | 342 750€ | A205 | Appt. | T3 | 66.6m2 | 2ème | Archivé | 342 750€ | Voir |
| Voir | Archivé | 298 750€ | A206 | Appt. | T3 | 60.9m2 | 2ème | Archivé | 298 750€ | Voir |
| Voir | Archivé | 297 750€ | A208 | Appt. | T3 | 60.8m2 | 2ème | Archivé | 297 750€ | Voir |
| Voir | Archivé | 352 750€ | A301 | Appt. | T3 | 67.7m2 | 3ème | Archivé | 352 750€ | Voir |
| Voir | Archivé | 306 750€ | A306 | Appt. | T3 | 60.9m2 | 3ème | Archivé | 306 750€ | Voir |
| Voir | Archivé | 305 750€ | A308 | Appt. | T3 | 60.8m2 | 3ème | Archivé | 305 750€ | Voir |
| Voir | Archivé | 332 750€ | A401 | Appt. | T3 | 63.3m2 | 4ème | Archivé | 332 750€ | Voir |
| Voir | Archivé | 324 750€ | A405 | Appt. | T3 | 60.9m2 | 4ème | Archivé | 324 750€ | Voir |
| Voir | Archivé | 313 750€ | A407 | Appt. | T3 | 60.8m2 | 4ème | Archivé | 313 750€ | Voir |
| Voir | Archivé | 337 750€ | A501 | Appt. | T3 | 63.3m2 | 5ème | Archivé | 337 750€ | Voir |
| Voir | Archivé | 316 750€ | A505 | Appt. | T3 | 60.9m2 | 5ème | Archivé | 316 750€ | Voir |
| Voir | Archivé | 321 750€ | A507 | Appt. | T3 | 60.8m2 | 5ème | Archivé | 321 750€ | Voir |
| Voir | Archivé | 367 750€ | A601 | Appt. | T3 | 69.8m2 | 6ème | Archivé | 367 750€ | Voir |
| Voir | Archivé | 357 750€ | A603 | Appt. | T3 | 68.2m2 | 6ème | Archivé | 357 750€ | Voir |
| Voir | Archivé | 327 750€ | B101 | Appt. | T3 | 66.8m2 | 1er | Archivé | 327 750€ | Voir |
| Voir | Archivé | 337 750€ | B201 | Appt. | T3 | 66.8m2 | 2ème | Archivé | 337 750€ | Voir |