Prix
215 000€  (TVA 20%)
197 083€  (TVA 10%)
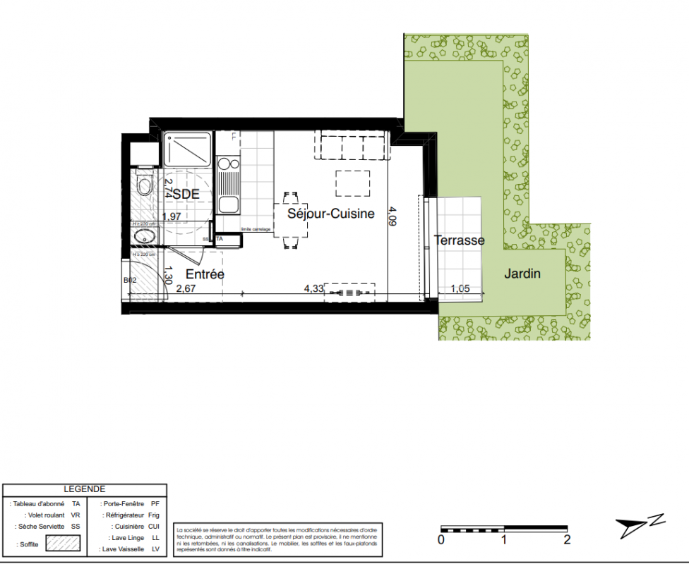
Type
Appt. au 0-RDC
Pièces
Studio
Surface
27.14 m²
Exposition
-
Ville
Neuilly-Plaisance (93360)
Livraison
1er trimestre 2028
Informations
01 81 80 39 10

Présentation du programme "Iris"

- Appartements du studio au 3 pièces
- Surfaces généreuses prolongées d'une terrasse‐jardin ou d'un balcon
- Résidence intimiste de 3 niveaux
- Architecture cossue aux matériaux nobles et pérennes
- Adresse résidentielle et centrale
- Emplacement proche des commerces et services du quotidien et de structures culturelles, sportives, de loisir, éducatives, de santé...

Autres logements Studio du programme "Iris"

Disponibilité Prix Genre Pièces Surface Étage
Voir
Disponible
231 000€ Appt. Studio 29.42m2 3ème
Voir
Disponible
233 000€ Appt. Studio 30.21m2 0-RDC
DO NOT CLICK