386 000€ (TVA 20%)
339 358€ (TVA 5.5%)
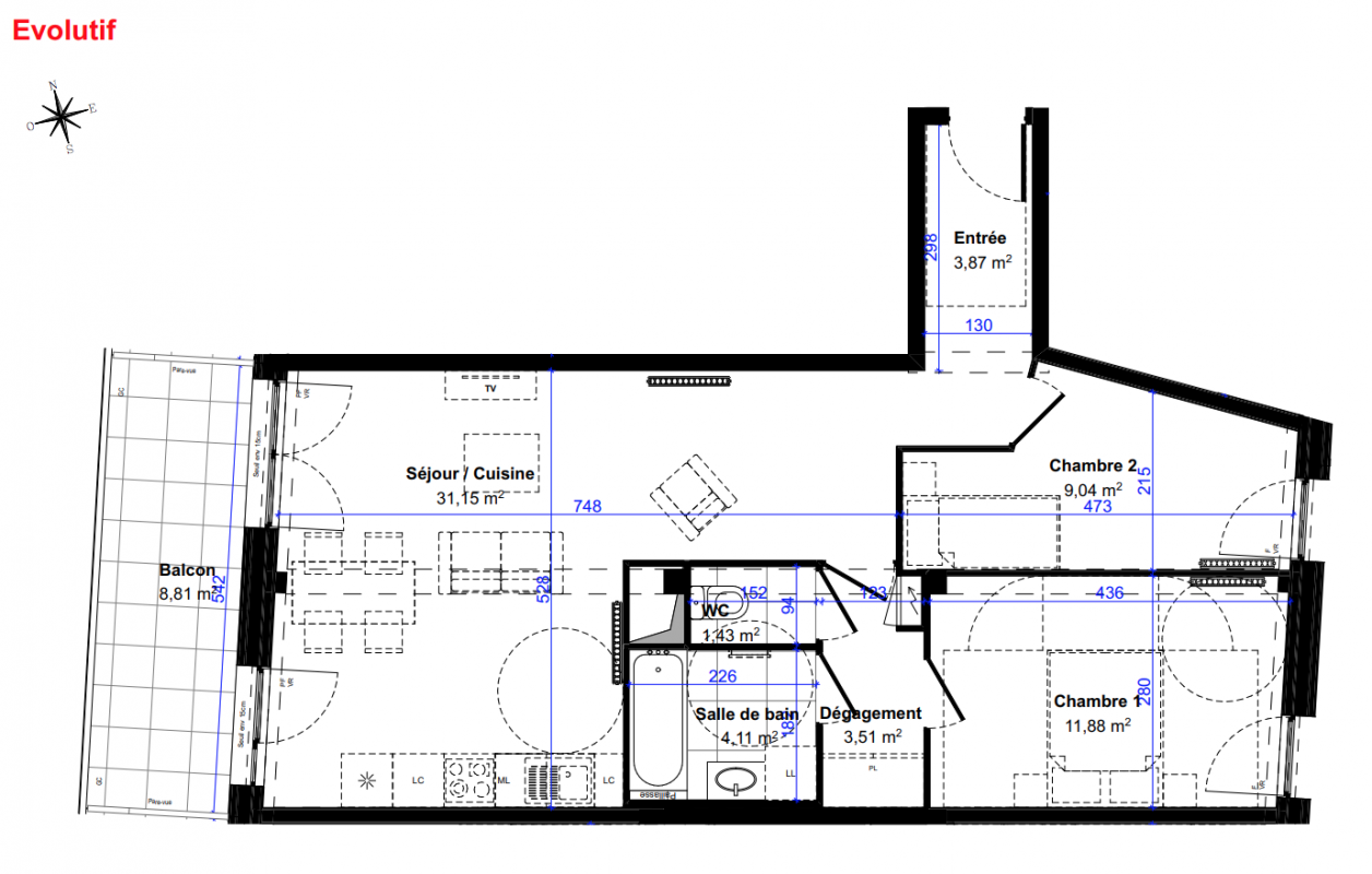
Appt. au 2ème
T3
65 m²
-
Romainville (93230)
4ème trimestre 2028
01 81 80 39 10
Présentation du programme "ROOJ - COTEAU"
Rooj-Coteau à Romainville, un programme immobilier de deux résidences neuves au coeur du renouveau de la ZAC de l'Horloge.
Logements lumineux, double orientation, coeur d'îlot végétalisé et grands espaces extérieurs privatifs et vues dégagées.
La résidence tend vers le seuil 2028 de la réglementation environnementale 2020, ce qui signifie des logements qui consomment moins d'énergie : factures énergétiques plus faibles et logement plus performant dans le temps.
Performances environnementales élevées, matériaux durables, toitures végétalisées.
Dans un environnement naturel exceptionnel : Canal de l'Ourcq, Corniche des forts, futur jardin du Coteau Groupe scolaire neuf au pied du programme, place Jenny Alpha, marché des Bas-Pays, maison de santé, commerces de proximité sur la rue Gaston Roussel. À 10 min à pied du métro Ligne 5, et future arrivée du T Zen 3. Mobilités douces autour du Grand Chemin, nouvelle artère reliant la Corniche des Forts au canal de l'Ourcq. Un emplacement stratégique, dans un quartier en pleine transformation où la vie culturelle n'est pas en reste : Le Pavillon, médiathèque Romain-Rolland, l'annexe, le FRAC Ile-de-France...
Habiter le Coteau, c'est vivre entre ville et nature.
Autres logements T3 du programme "ROOJ - COTEAU"
| Disponibilité | Prix | No | Genre | Pièces | Surface | Étage | Disponibilité | Prix | ||
|---|---|---|---|---|---|---|---|---|---|---|
| Voir | Disponible | 378 000€ | E5 B21 | Appt. | T3 | 58.5m2 | 0-RDC | Disponible | 378 000€ | Voir |
| Voir | Optionné | 386 000€ | E5 B31 | Appt. | T3 | 58.5m2 | 0-RDC | Optionné Mais pas encore vendu 😉 | 386 000€ | Voir |
| Voir | Disponible | 371 000€ | E5 B11 | Appt. | T3 | 58.6m2 | 0-RDC | Disponible | 371 000€ | Voir |
| Voir | Optionné | 345 000€ | E1 A201 | Appt. | T3 | 60.8m2 | 2ème | Optionné Mais pas encore vendu 😉 | 345 000€ | Voir |
| Voir | Disponible | 358 000€ | E1 A301 | Appt. | T3 | 60.8m2 | 3ème | Disponible | 358 000€ | Voir |
| Voir | Optionné | 386 000€ | E1 A401 | Appt. | T3 | 60.8m2 | 4ème | Optionné Mais pas encore vendu 😉 | 386 000€ | Voir |
| Voir | Optionné | 304 192€ | E1 A101 | Appt. | T3 | 60.8m2 | 1er | Optionné Mais pas encore vendu 😉 | 304 192€ | Voir |
| Voir | Disponible | 371 000€ | E1 A202 | Appt. | T3 | 61.8m2 | 0-RDC | Disponible | 371 000€ | Voir |
| Voir | Disponible | 365 000€ | E1 A102 | Appt. | T3 | 61.8m2 | 1er | Disponible | 365 000€ | Voir |
| Voir | Disponible | 372 000€ | E1 B104 | Appt. | T3 | 62.07m2 | 1er | Disponible | 372 000€ | Voir |
| Voir | Disponible | 372 000€ | E1 B204 | Appt. | T3 | 62.07m2 | 2ème | Disponible | 372 000€ | Voir |
| Voir | Disponible | 355 000€ | E1 B201 | Appt. | T3 | 63.29m2 | 2ème | Disponible | 355 000€ | Voir |
| Voir | Disponible | 359 000€ | E1 A001 | Appt. | T3 | 63.89m2 | 0-RDC | Disponible | 359 000€ | Voir |
| Voir | Disponible | 353 000€ | E1 B101 | Appt. | T3 | 64.19m2 | 1er | Disponible | 353 000€ | Voir |
| Voir | Disponible | 379 000€ | E5 B14 | Appt. | T3 | 64.4m2 | 0-RDC | Disponible | 379 000€ | Voir |
| Voir | Optionné | 388 000€ | E5 B24 | Appt. | T3 | 64.5m2 | 0-RDC | Optionné Mais pas encore vendu 😉 | 388 000€ | Voir |
| Voir | Disponible | 403 000€ | E5 B42 | Appt. | T3 | 64.6m2 | 0-RDC | Disponible | 403 000€ | Voir |
| Voir | Disponible | 379 000€ | E1 A104 | Appt. | T3 | 65m2 | 1er | Disponible | 379 000€ | Voir |
| Voir | Disponible | 397 000€ | E5 A14 | Appt. | T3 | 65.5m2 | 1er | Disponible | 397 000€ | Voir |
| Voir | Optionné | 411 000€ | E5 A32 | Appt. | T3 | 65.5m2 | 3ème | Optionné Mais pas encore vendu 😉 | 411 000€ | Voir |
| Voir | Disponible | 407 000€ | E5 A12 | Appt. | T3 | 65.6m2 | 1er | Disponible | 407 000€ | Voir |
| Voir | Optionné | 404 000€ | E5 A22 | Appt. | T3 | 65.8m2 | 2ème | Optionné Mais pas encore vendu 😉 | 404 000€ | Voir |
| Voir | Optionné | 412 000€ | E5 A34 | Appt. | T3 | 65.8m2 | 3ème | Optionné Mais pas encore vendu 😉 | 412 000€ | Voir |
| Voir | Disponible | 419 000€ | E5 A44 | Appt. | T3 | 65.8m2 | 4ème | Disponible | 419 000€ | Voir |
| Voir | Disponible | 427 000€ | E5 A53 | Appt. | T3 | 65.8m2 | 5ème | Disponible | 427 000€ | Voir |
| Voir | Disponible | 404 000€ | E5 A24 | Appt. | T3 | 65.9m2 | 0-RDC | Disponible | 404 000€ | Voir |
| Voir | Disponible | 395 000€ | E5 B34 | Appt. | T3 | 67.5m2 | 0-RDC | Disponible | 395 000€ | Voir |
| Voir | Optionné | 420 000€ | E5 B52 | Appt. | T3 | 69.2m2 | 0-RDC | Optionné Mais pas encore vendu 😉 | 420 000€ | Voir |