Prix
226 351€  (TVA 20%)
199 000€  (TVA 5.5%)
Type
Appt. au 5ème
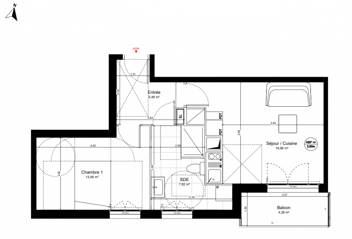
Pièces
T2
Surface
44.93 m²
Exposition
-
Ville
Goussainville (95190)
Livraison
2ème trimestre 2028
Informations
01 81 80 39 10

Présentation du programme "LE DOMAINE DES TILLEULS"

Programme neuf Goussainville - 95190

Autres logements T2 du programme "LE DOMAINE DES TILLEULS"

Disponibilité Prix Genre Pièces Surface Étage
Voir
Disponible
207 014€ Appt. T2 41.21m2 2ème
Voir
Disponible
206 445€ Appt. T2 39.74m2 3ème
DO NOT CLICK