Prix
201 000€  (TVA 20%)
184 250€  (TVA 10%)
Type
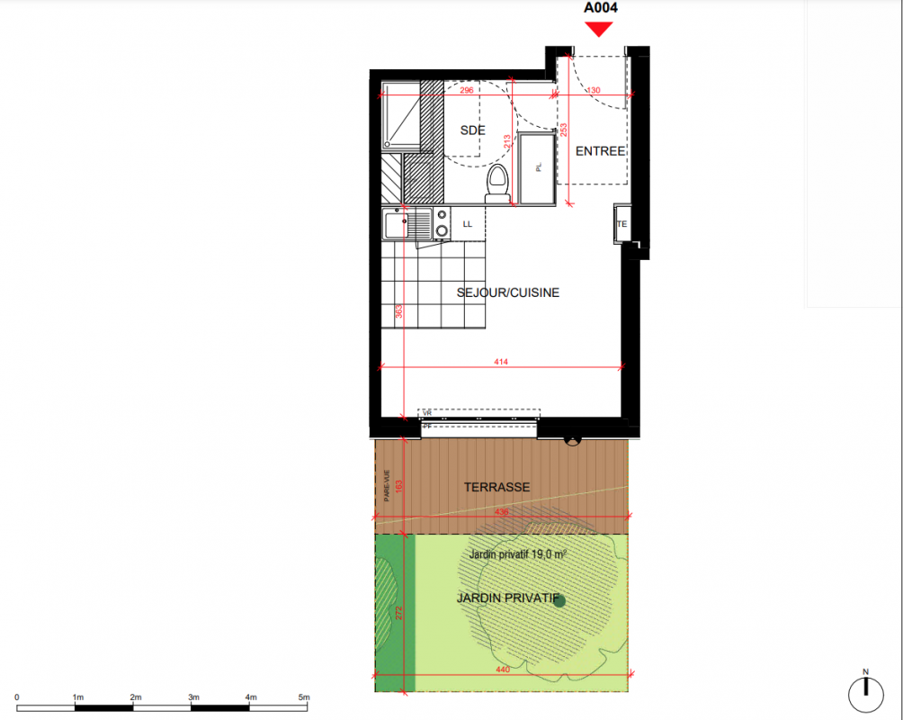
Appt. au 0-RDC
Pièces
Studio
Surface
24.18 m²
Exposition
-
Ville
Champigny-sur-Marne (94500)
Livraison
4ème trimestre 2027
Informations
01 81 80 39 10

Présentation du programme "Résidence 1906"

Découvrez la nouvelle Résidence 1906 face au Parc du Tremblay, à 21 min de Paris !

- Du studio au 5 pièces avec jardin, balcon ou terrasse pour tous
- Jardin central en coeur d'ilot
- Adresse résidentielle calme face au Parc du Tremblay
- Rue calme à sens unique, loin de l'agitation des axes très fréquentés
- Nombreux appartements avec vue sur le Parc du Tremblay
- Architecture élégante aux matériaux nobles et pérennes
- Emplacement proche des commodités et de nombreux transports : bus, RER A et RER E, future ligne 15 du Grand Paris Express, autoroute A4...

Autres logements Studio du programme "Résidence 1906"

Disponibilité Prix Genre Pièces Surface Étage
Voir
Disponible
211 000€ Appt. Studio 26.72m2 0-RDC
Voir
Disponible
214 000€ Appt. Studio 27.83m2 3ème
DO NOT CLICK