Prix
406 976€  (TVA 20%)
357 800€  (TVA 5.5%)
Type
Appt. au 2ème
Pièces
T3
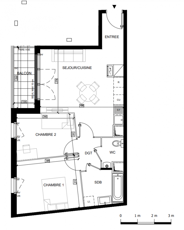
Surface
55.4 m²
Exposition
-
Ville
Villejuif (94800)
Livraison
2ème trimestre 2028
Informations
01 81 80 39 10

Présentation du programme "VILLA GABRIELLA"

Découvrez notre nouvelle résidence de standing située au coeur de Villejuif (94) proche des parcs et à 10 min du métro ligne 7. TRIANON Promotion vous présente « VILLA GABRIELLA » : nouvelle résidence intimiste au style architectural sobre et contemporain composée de seulement 20 appartements du 2 au 4 pièces prolongés par des espaces extérieurs (balcons, terrasses ou jardins privatifs) avec un coeur d'ilot véritable poumon vert à partager au coeur de la résidence.

Autres logements T3 du programme "VILLA GABRIELLA"

Disponibilité Prix Genre Pièces Surface Étage
Voir
Disponible
415 000€ Appt. T3 55.4m2 1er
Voir
Disponible
432 000€ Appt. T3 57.85m2 3ème
Voir
Disponible
415 052€ Appt. T3 58.48m2 1er
Voir
Disponible
424 038€ Appt. T3 58.48m2 2ème
Voir
Optionné
429 953€ Appt. T3 58.38m2 2ème
DO NOT CLICK