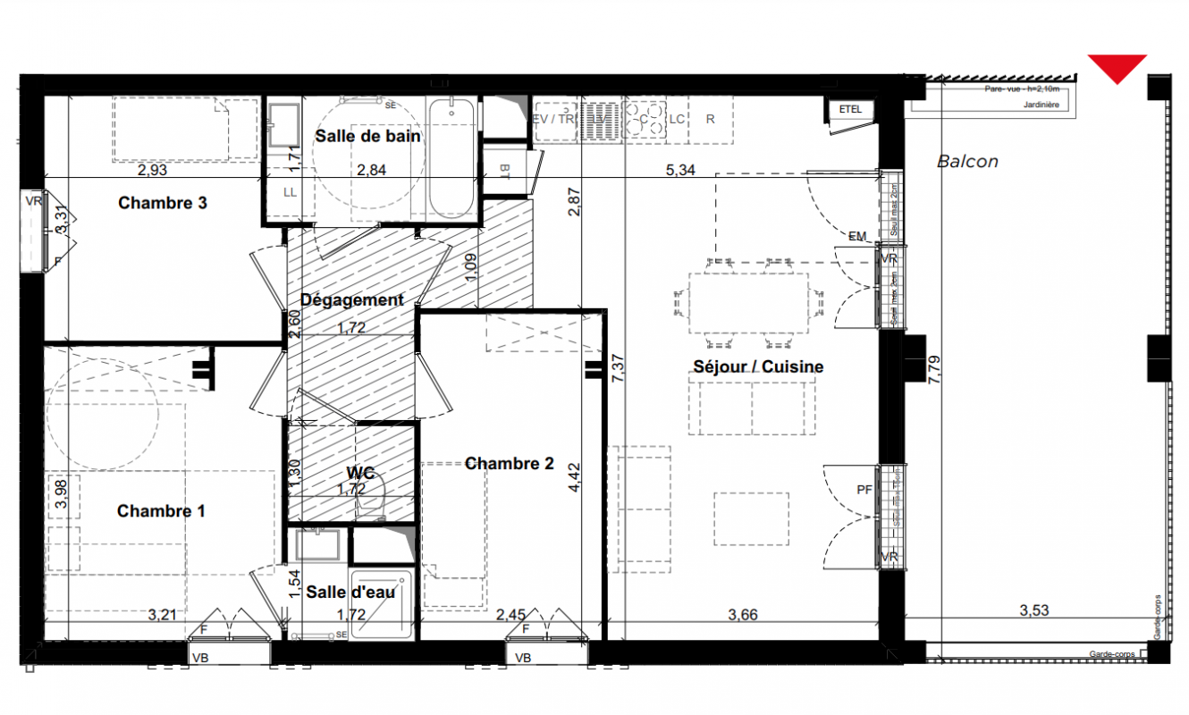
302 900€
Appt. au 0-RDC
-
78.82 m²
-
Gargenville (78440)
2ème trimestre 2028
01 81 80 39 10
Présentation du programme "LES SARMENTS"
LES SARMENTS - Appartements et maisons neufs à Gargenville.
Vos Frais de notaire OFFERTS + REMISE de 3 000 euros par pièce pour les 5 premiers réservataires *
Située rue Marcelle Devaud, au coeur du nouveau quartier des Hauts de Rangiport, la résidence s'inscrit dans un environnement en plein renouveau, à proximité des bords de Seine, des commerces et des transports.
La résidence propose 39 appartements du 2 au 4 pièces et 9 maisons de 4 à 5 pièces, adaptés aux besoins des couples et des familles.
Composée de 3 bâtiments à taille humaine et de maisons individuelles, la résidence se distingue par une architecture inspirée des longères yvelinoises, revisitée avec des matériaux contemporains et biosourcés. Sa conception bioclimatique et bois bas-carbone s'inscrit dans une démarche environnementale exigeante.
Les appartements proposent des espaces lumineux avec de larges ouvertures, prolongés par des balcons, loggias, terrasses ou jardins privatifs.
Les maisons offrent de beaux volumes avec jardin privatif d'au moins 45 m², idéalement orienté, et des espaces pensés pour le confort du quotidien.
Les + du programme :
•Environnement paysager en coeur d'îlot avec verger et espaces végétalisés
•Construction bois biosourcée et performances environnementales élevées
•Labels : RE2020 (seuil 2028), NF Habitat, BiodiverCity
•Stationnements et local vélos
•Résidence sécurisée
Au quotidien, profitez d'un environnement pratique :
•Commerces, marché et services accessibles à pied
•Écoles et équipements à proximité
•Gare de Gargenville (Transilien J) reliant Paris Saint-Lazare
•Accès rapide à l'A13 et proximité de Mantes-la-Jolie
•Environnement naturel entre Seine, plaine et parc naturel régional
Un cadre de vie équilibré entre nature et accessibilité, idéal pour habiter en famille tout en restant connecté aux bassins d'emploi franciliens.
Contactez-nous dès maintenant au 01 87 52 25 22 pour obtenir plus d'informations et découvrir les logements disponibles.
* Offres promotionnelles valables du 01/03/2026 au 30/04/2026 inclus, dans la limite des stocks disponibles et réservées aux 5 premiers réservataires, sous réserve de la signature d'un contrat de réservation d'un logement SPIRIT. Offres non cumulables avec toute autre offre en
Autres logements - du programme "LES SARMENTS"
| Disponibilité | Prix | No | Genre | Pièces | Surface | Étage | Disponibilité | Prix | ||
|---|---|---|---|---|---|---|---|---|---|---|
| Voir | Disponible | 164 900€ | B05 | Appt. | - | 38.09m2 | 0-RDC | Disponible | 164 900€ | Voir |
| Voir | Disponible | 169 900€ | B06 | Appt. | - | 38.09m2 | 0-RDC | Disponible | 169 900€ | Voir |
| Voir | Disponible | 169 900€ | B07 | Appt. | - | 38.09m2 | 0-RDC | Disponible | 169 900€ | Voir |
| Voir | Disponible | 176 900€ | B12 | Appt. | - | 36.26m2 | 1er | Disponible | 176 900€ | Voir |
| Voir | Disponible | 176 900€ | B13 | Appt. | - | 37.66m2 | 1er | Disponible | 176 900€ | Voir |
| Voir | Disponible | 169 900€ | B14 | Appt. | - | 38.09m2 | 1er | Disponible | 169 900€ | Voir |
| Voir | Disponible | 169 900€ | B15 | Appt. | - | 38.09m2 | 1er | Disponible | 169 900€ | Voir |
| Voir | Disponible | 173 900€ | A04 | Appt. | - | 38.09m2 | 0-RDC | Disponible | 173 900€ | Voir |
| Voir | Disponible | 173 900€ | A05 | Appt. | - | 38.09m2 | 0-RDC | Disponible | 173 900€ | Voir |
| Voir | Disponible | 173 900€ | A06 | Appt. | - | 38.09m2 | 0-RDC | Disponible | 173 900€ | Voir |
| Voir | Disponible | 173 900€ | A07 | Appt. | - | 38.09m2 | 0-RDC | Disponible | 173 900€ | Voir |
| Voir | Disponible | 173 900€ | B02 | Appt. | - | 36.26m2 | 0-RDC | Disponible | 173 900€ | Voir |
| Voir | Disponible | 173 900€ | B03 | Appt. | - | 37.66m2 | 0-RDC | Disponible | 173 900€ | Voir |
| Voir | Disponible | 173 900€ | B08 | Appt. | - | 38.16m2 | 0-RDC | Disponible | 173 900€ | Voir |
| Voir | Disponible | 179 900€ | B22 | Appt. | - | 36.26m2 | 2ème | Disponible | 179 900€ | Voir |
| Voir | Disponible | 179 900€ | A13 | Appt. | - | 37.66m2 | 1er | Disponible | 179 900€ | Voir |
| Voir | Disponible | 176 900€ | A14 | Appt. | - | 38.09m2 | 1er | Disponible | 176 900€ | Voir |
| Voir | Disponible | 176 900€ | A15 | Appt. | - | 38.09m2 | 1er | Disponible | 176 900€ | Voir |
| Voir | Disponible | 169 900€ | B17 | Appt. | - | 38.09m2 | 1er | Disponible | 169 900€ | Voir |
| Voir | Disponible | 254 900€ | B28 duplex | Appt. | - | 67.82m2 | 2ème | Disponible | 254 900€ | Voir |
| Voir | Disponible | 169 900€ | B16 | Appt. | - | 38.09m2 | 1er | Disponible | 169 900€ | Voir |
| Voir | Disponible | 178 900€ | A02 | Appt. | - | 36.26m2 | 0-RDC | Disponible | 178 900€ | Voir |
| Voir | Disponible | 178 900€ | A03 | Appt. | - | 37.66m2 | 0-RDC | Disponible | 178 900€ | Voir |
| Voir | Disponible | 178 900€ | A08 | Appt. | - | 38.16m2 | 0-RDC | Disponible | 178 900€ | Voir |
| Voir | Disponible | 176 900€ | B18 | Appt. | - | 38.16m2 | 1er | Disponible | 176 900€ | Voir |
| Voir | Disponible | 179 900€ | A12 | Appt. | - | 36.26m2 | 1er | Disponible | 179 900€ | Voir |
| Voir | Disponible | 179 900€ | A22 | Appt. | - | 36.26m2 | 2ème | Disponible | 179 900€ | Voir |
| Voir | Disponible | 176 900€ | A16 | Appt. | - | 38.09m2 | 1er | Disponible | 176 900€ | Voir |
| Voir | Disponible | 179 900€ | A18 | Appt. | - | 38.16m2 | 1er | Disponible | 179 900€ | Voir |
| Voir | Disponible | 312 900€ | B21 | Appt. | - | 78.82m2 | 2ème | Disponible | 312 900€ | Voir |
| Voir | Disponible | 249 900€ | B25 duplex | Appt. | - | 68.72m2 | 2ème | Disponible | 249 900€ | Voir |
| Voir | Disponible | 254 900€ | B23 duplex | Appt. | - | 67.84m2 | 2ème | Disponible | 254 900€ | Voir |
| Voir | Disponible | 249 900€ | A27 duplex | Appt. | - | 68.72m2 | 2ème | Disponible | 249 900€ | Voir |
| Voir | Disponible | 259 900€ | A23 duplex | Appt. | - | 67.84m2 | 2ème | Disponible | 259 900€ | Voir |
| Voir | Disponible | 249 900€ | A26 duplex | Appt. | - | 68.72m2 | 2ème | Disponible | 249 900€ | Voir |
| Voir | Disponible | 249 900€ | B26 duplex | Appt. | - | 68.72m2 | 2ème | Disponible | 249 900€ | Voir |
| Voir | Disponible | 244 900€ | B24 duplex | Appt. | - | 68.72m2 Le bon plan | 2ème | Disponible | 244 900€ | Voir |
| Voir | Disponible | 249 900€ | A24 duplex | Appt. | - | 68.72m2 | 2ème | Disponible | 249 900€ | Voir |
| Voir | Disponible | 249 900€ | A25 duplex | Appt. | - | 68.72m2 | 2ème | Disponible | 249 900€ | Voir |
| Voir | Disponible | 308 900€ | B11 | Appt. | - | 78.82m2 | 1er | Disponible | 308 900€ | Voir |
| Voir | Disponible | 309 900€ | A01 | Appt. | - | 78.82m2 | 0-RDC | Disponible | 309 900€ | Voir |
| Voir | Disponible | 249 900€ | B27 duplex | Appt. | - | 68.72m2 | 2ème | Disponible | 249 900€ | Voir |
| Voir | Disponible | 315 900€ | A11 | Appt. | - | 78.82m2 | 1er | Disponible | 315 900€ | Voir |
| Voir | Disponible | 319 900€ | A21 | Appt. | - | 78.82m2 | 2ème | Disponible | 319 900€ | Voir |
| Voir | Disponible | 349 900€ | M05 | Appt. | - | 82.24m2 | 0-RDC | Disponible | 349 900€ | Voir |
| Voir | Disponible | 359 900€ | M06 | Appt. | - | 82.24m2 | 0-RDC | Disponible | 359 900€ | Voir |
| Voir | Disponible | 359 900€ | M07 | Appt. | - | 82.24m2 | 0-RDC | Disponible | 359 900€ | Voir |
| Voir | Disponible | 359 900€ | M08 | Appt. | - | 82.24m2 | 0-RDC | Disponible | 359 900€ | Voir |
| Voir | Optionné | 379 900€ | M04 | Appt. | - | 93.84m2 | 0-RDC | Optionné Mais pas encore vendu 😉 | 379 900€ | Voir |
| Voir | Disponible | 176 900€ | A17 | Appt. | - | 38.09m2 | 1er | Disponible | 176 900€ | Voir |