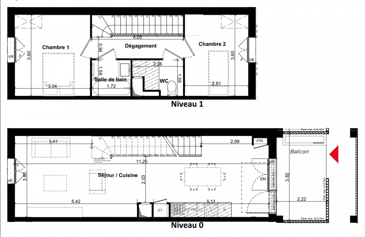
Appt. n°B24 duplex

Programme "LES SARMENTS"
Prix
244 900€
Type
Appt. au 2ème
Pièces
T3
Surface
68.72 m²
Exposition
-
Ville
Gargenville (78440)
Livraison
2ème trimestre 2028
Informations
01 81 80 39 10

Présentation du programme "LES SARMENTS"

Vos Frais de notaire OFFERTS + REMISE de 3 000 euros par pièce pour les 5 premiers réservataires *

Située rue Marcelle Devaud, au coeur du nouveau quartier des Hauts de Rangiport, la résidence s'inscrit dans un environnement en plein renouveau, à proximité des bords de Seine, des commerces et des transports.

La résidence propose 39 appartements du 2 au 4 pièces et 9 maisons de 4 à 5 pièces, adaptés aux besoins des couples et des familles.

Composée de 3 bâtiments à taille humaine et de maisons individuelles, la résidence se distingue par une architecture inspirée des longères yvelinoises, revisitée avec des matériaux contemporains et biosourcés. Sa conception bioclimatique et bois bas-carbone s'inscrit dans une démarche environnementale exigeante.

Les appartements proposent des espaces lumineux avec de larges ouvertures, prolongés par des balcons, loggias, terrasses ou jardins privatifs.
Les maisons offrent de beaux volumes avec jardin privatif d'au moins 45 m², idéalement orienté, et des espaces pensés pour le confort du quotidien.

Les + du programme :
•Environnement paysager en coeur d'îlot avec verger et espaces végétalisés
•Construction bois biosourcée et performances environnementales élevées
•Labels : RE2020 (seuil 2028), NF Habitat, BiodiverCity
•Stationnements et local vélos
•Résidence sécurisée

Au quotidien, profitez d'un environnement pratique :
•Commerces, marché et services accessibles à pied
•Écoles et équipements à proximité
•Gare de Gargenville (Transilien J) reliant Paris Saint-Lazare
•Accès rapide à l'A13 et proximité de Mantes-la-Jolie
•Environnement naturel entre Seine, plaine et parc naturel régional

Un cadre de vie équilibré entre nature et accessibilité, idéal pour habiter en famille tout en restant connecté aux bassins d'emploi franciliens.

Contactez-nous dès maintenant au 01 87 52 25 22 pour obtenir plus d'informations et découvrir les logements disponibles.

Autres logements T3 du programme "LES SARMENTS"

Disponibilité Prix Genre Pièces Surface Étage
Voir
Disponible
254 900€ Appt. T3 67.84m2 2ème
Voir
Disponible
254 900€ Appt. T3 67.82m2 2ème
Voir
Disponible
259 900€ Appt. T3 67.84m2 2ème
Voir
Disponible
249 900€ Appt. T3 68.72m2 2ème
Voir
Disponible
249 900€ Appt. T3 68.72m2 2ème
Voir
Disponible
249 900€ Appt. T3 68.72m2 2ème
Voir
Disponible
249 900€ Appt. T3 68.72m2 2ème
Voir
Disponible
249 900€ Appt. T3 68.72m2 2ème
Voir
Disponible
249 900€ Appt. T3 68.72m2 2ème
Voir
Disponible
249 900€ Appt. T3 68.72m2 2ème
DO NOT CLICK