178 900€
Appt. au 2ème
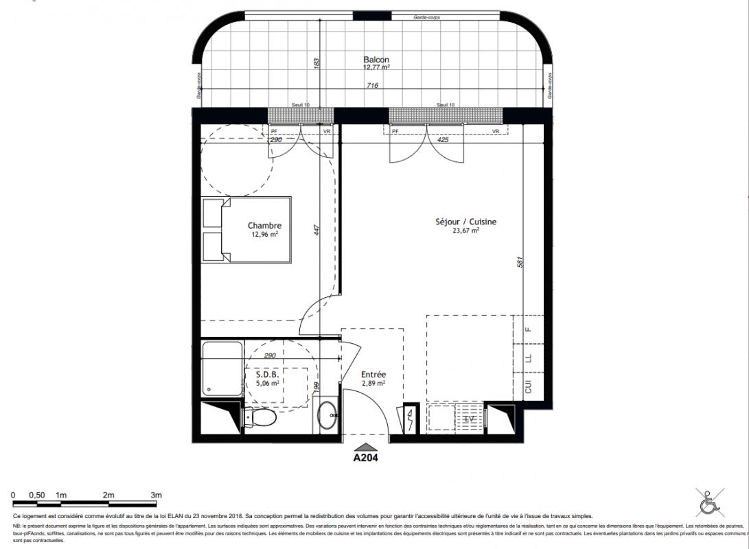
T2
44.58 m²
-
Mantes-la-Jolie (78200)
2ème trimestre 2028
01 81 80 39 10
Présentation du programme "L'AVANT SEINE"
VOTRE CUISINE OFFERTE + JUSQU'A 15 000 EUROS DE REMISE + VOS FRAIS DE NOTAIRE OFFERTS * ! Une adresse d'exception face à la Seine ! Une résidence raffinée située boulevard des Cygnes, offrant une vue imprenable sur la Seine. Profitez d'un cadre de vie paisible et lumineux. Un panorama unique, un quotidien apaisé. Une architecture élégante sublimée par la Seine et ses berges aménagées. Une résidence à 15 minutes à pied du centre-ville et de la mairie. Des appartements conçus pour votre confort, du studio au 5 pièces, avec balcon, loggia ou terrasse pour prolonger chaque espace de vie. Des aménagements intérieurs variés pour répondre aux besoins de tous. Un investissement rare face à la Seine ! Une opportunité exclusive dans un cadre naturel et urbain harmonieux. Offrez-vous un cadre de vie unique où la sérénité de la Seine rencontre la proximité des commodités. Contactez-nous dès maintenant pour en savoir plus. *Offres valables pour les 5 premiers réservataires. Voir conditions.