301 000€
Appt. au 3ème
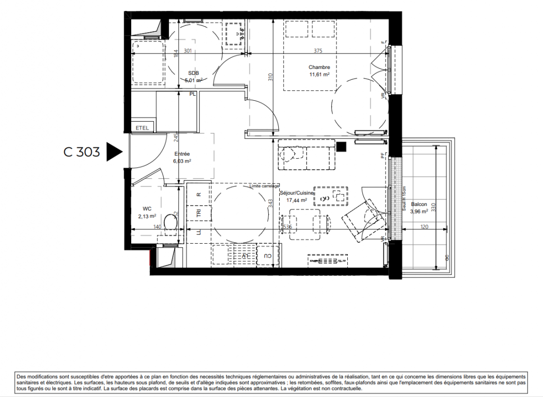
T2
42.22 m²
-
Saint-Germain-en-Laye (78100)
3ème trimestre 2028
01 81 80 39 10
Présentation du programme "Le Domaine des Arpèges"
LANCEMENT – Domaine des Arpèges, Saint-Germain-en-Laye (78) Offres exclusives pour les 10 premiers réservataires : Frais de notaire offerts + 3 000 € / pièce* (Voir conditions auprès de votre conseiller) À deux pas du centre-ville, dans le quartier calme et résidentiel de la Sous-Préfecture, Le Domaine des Arpèges s’intègre dans un environnement agréable et verdoyant. La résidence se distingue par son architecture contemporaine et lumineuse, ses façades en cascade et son jardin paysager d’inspiration japonaise, planté de plus de 80 arbres, offrant un cadre apaisant et privilégié. Les appartements, du studio au 5 pièces, bénéficient de plans optimisés et d’une belle luminosité naturelle grâce à leurs larges baies vitrées. Les prestations modernes (cuisines ouvertes, salles de bains équipées, rangements intégrés) et la conformité RE 2020 garantissent confort et performance énergétique au quotidien. Le quartier offre toutes les commodités à portée de main : écoles Jean Moulin et Notre-Dame, crèche le Bel-Air, commerces de proximité, marché du Bel-Air, club de fitness, et équipements culturels et sportifs. Les gares Bel-Air Fourqueux (à 5 min à pied), RER A et Tram T13 assurent une excellente connexion vers Paris, La Défense et Saint-Cyr-l’École. La forêt domaniale de Saint-Germain et les parcs environnants invitent quant à eux à la détente et aux promenades. Un cadre de vie rare, associant calme, lumière et modernité, idéal pour vivre ou investir à Saint-Germain-en-Laye. Contactez-nous dès aujourd’hui pour profiter des offres de lancement
Autres logements T2 du programme "Le Domaine des Arpèges"
| Disponibilité | Prix | No | Genre | Pièces | Surface | Étage | Disponibilité | Prix | ||
|---|---|---|---|---|---|---|---|---|---|---|
| Voir | Disponible | 299 000€ | C101 | Appt. | T2 | 43.61m2 | 1er | Disponible | 299 000€ | Voir |
| Voir | Disponible | 285 000€ | C404 | Appt. | T2 | 42.01m2 | 4ème | Disponible | 285 000€ | Voir |
| Voir | Disponible | 280 000€ | C305 | Appt. | T2 | 42.01m2 | 3ème | Disponible | 280 000€ | Voir |
| Voir | Disponible | 290 000€ | C104 | Appt. | T2 | 42.17m2 | 1er | Disponible | 290 000€ | Voir |
| Voir | Disponible | 299 000€ | C006 | Appt. | T2 | 47.89m2 | 0-RDC | Disponible | 299 000€ | Voir |
| Voir | Disponible | 269 000€ | C106 | Appt. | T2 | 42m2 | 1er | Disponible | 269 000€ | Voir |
| Voir | Disponible | 295 000€ | C203 | Appt. | T2 | 42.15m2 | 2ème | Disponible | 295 000€ | Voir |
| Voir | Disponible | 271 000€ | C004 | Appt. | T2 | 42.23m2 | 0-RDC | Disponible | 271 000€ | Voir |
| Voir | Disponible | 274 000€ | C205 | Appt. | T2 | 42.01m2 | 2ème | Disponible | 274 000€ | Voir |
| Voir | Disponible | 339 000€ | B506 | Appt. | T2 | 47.11m2 | 0-RDC | Disponible | 339 000€ | Voir |
| Voir | Disponible | 308 000€ | B201 | Appt. | T2 | 46.53m2 | 0-RDC | Disponible | 308 000€ | Voir |
| Voir | Disponible | 298 000€ | B308 | Appt. | T2 | 43.31m2 | 0-RDC | Disponible | 298 000€ | Voir |
| Voir | Disponible | 292 000€ | B208 | Appt. | T2 | 43.31m2 | 0-RDC | Disponible | 292 000€ | Voir |
| Voir | Disponible | 344 000€ | B505 | Appt. | T2 | 47.91m2 | 0-RDC | Disponible | 344 000€ | Voir |
| Voir | Disponible | 303 000€ | B408 | Appt. | T2 | 43.31m2 | 0-RDC | Disponible | 303 000€ | Voir |
| Voir | Disponible | 303 000€ | B101 | Appt. | T2 | 46.53m2 | 0-RDC | Disponible | 303 000€ | Voir |
| Voir | Disponible | 318 000€ | B401 | Appt. | T2 | 46.53m2 | 0-RDC | Disponible | 318 000€ | Voir |
| Voir | Disponible | 310 000€ | B108 | Appt. | T2 | 43.31m2 | 0-RDC | Disponible | 310 000€ | Voir |
| Voir | Disponible | 313 000€ | B301 | Appt. | T2 | 46.53m2 | 0-RDC | Disponible | 313 000€ | Voir |