Prix
455 000€
Type
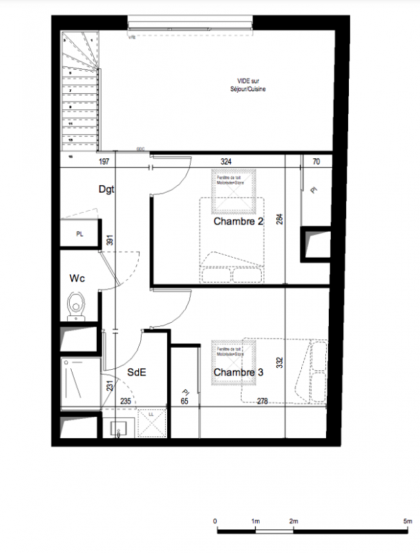
Appt. au 4ème
Pièces
T4
Surface
84.55 m²
Exposition
Nord
Ville
La Rochelle (17000)
Livraison
1er trimestre 2025
Informations
01 81 80 39 10

Présentation du programme "CELESTE"

A 10 minutes en vélo du Vieux Port de La Rochelle, la résidence Céleste est située dans le quartier calme avec toutes les commodités et la gare à proximité. L’architecture de la résidence Céleste a été dessinée avec des volumes variés. La résidence propose 41 appartements du 2 au 5 pièces avec loggias et terrasses qui viendront animer la façade. L'arrière de la résidence offre un grand jardin arboré de plus de 250 m² et au rez-de-chaussée des espaces de bureaux. Notre nouvelle signature rochelaise CELESTE prend place sur un des axes principaux de la ville : la rue Emile Normandin. Situé à proximité immédiate, le marais de Tasdon est une richesse naturelle qui valorise plus de 150 espèces d’oiseaux et plus de 330 espèces végétales !

Autres logements T4 du programme "CELESTE"

Disponibilité Prix Genre Pièces Surface Étage
Voir
Disponible
386 000€ Appt. T4 77.63m2 4ème
Voir
Disponible
406 000€ Appt. T4 77.64m2 5ème
Voir
Disponible
464 000€ Appt. T4 90.57m2 1er
Voir
Disponible
550 000€ Appt. T4 99.13m2 3ème
Voir
Disponible
459 000€ Appt. T4 85.73m2 4ème
DO NOT CLICK