Prix
470 000€
Type
Appt. au 1er
Pièces
T3
Surface
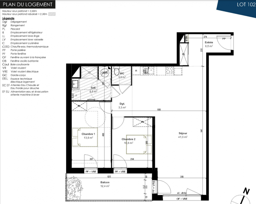
83.9 m²
Exposition
-
Ville
La Rochelle (17000)
Livraison
4ème trimestre 2027
Informations
01 81 80 39 10

Présentation du programme "Tempo"

Tempo – Résidence neuve à La RochelleDécouvrez Tempo, une résidence élégante et conTemporaine située à seulement 2 km du centre-ville de La Rochelle. Composée de 9 logements du T2 au T5, elle offre de belles surfaces, des extérieurs privatifs (terrasses ou jardins), et un cadre paysager soigné. 2 logements premium dont un duplex avec grandes terrasses. Stationnement privatif en sous-sol, espaces verts partagés, chauffage performant et prestations de qualité. Proche transports, commerces et gare. Certification RE2020 et environnement calme à proximité immédiate des commodités.

Autres logements T3 du programme "Tempo"

Disponibilité Prix Genre Pièces Surface Étage
Voir
Disponible
370 000€ Appt. T3 62.6m2 1er
Voir
Disponible
410 000€ Appt. T3 73.5m2 1er
Voir
Disponible
360 000€ Appt. T3 62.6m2 2ème
Voir
Disponible
440 000€ Appt. T3 80.1m2 2ème
Voir
Disponible
375 000€ Appt. T3 54.7m2 3ème
DO NOT CLICK