Prix
539 000€
Type
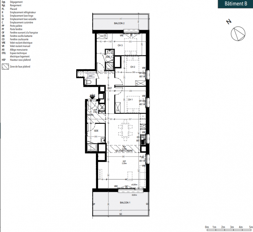
Appt. au 9ème
Pièces
T4
Surface
98.63 m²
Exposition
-
Ville
Royan (17200)
Livraison
3ème trimestre 2028
Informations
01 81 80 39 10

Présentation du programme "Horizon"

Rare et prisée, la résidence Horizon vous offre le privilège de devenir propriétaire d’un appartement neuf à Royan, dans un emplacement exceptionnel. À seulement 10 minutes à pied du marché central et 7 min à vélo de la Grande Plage, vous profitez d’un cadre de vie unique entre océan, nature et vie citadine.La résidence Horizon propose 42 logements neufs, du studio au 4 pièces, tous dotés de balcon ou terrasse et parking en sous-sol. Certains bénéficient de vues dégagées sur l’océan et la Grande Plage, notamment les appartements en étage élevé avec extérieurs spacieux.Découvrir le programme : https://www.eden-promotion.fr/programmes-immobiliers/programme-Horizon/

Autres logements T4 du programme "Horizon"

Disponibilité Prix Genre Pièces Surface Étage
Voir
Disponible
529 000€ Appt. T4 100.69m2 7ème
Voir
Disponible
485 000€ Appt. T4 95m2 9ème
Voir
Disponible
464 000€ Appt. T4 96.67m2 3ème
Voir
Disponible
469 000€ Appt. T4 96.67m2 4ème
DO NOT CLICK