229 499€ (TVA 20%)
210 374€ (TVA 10%)
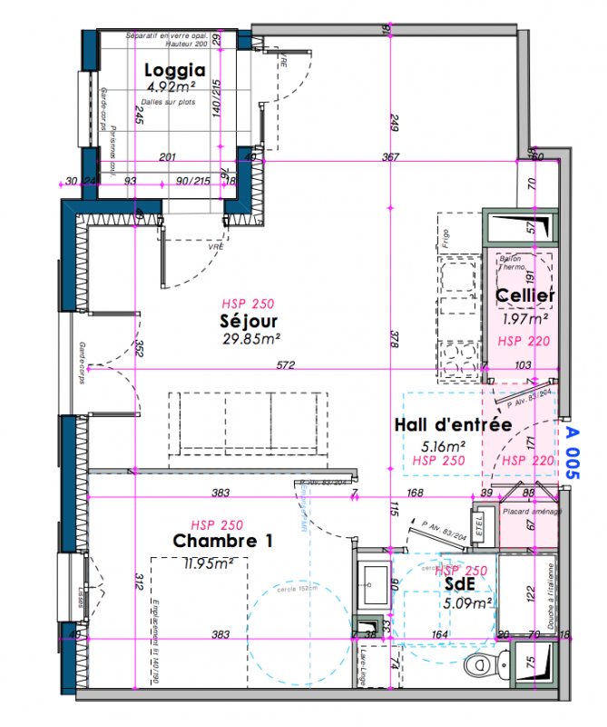
Appt. au 0-RDC
T2
54 m²
Ouest
Saint-Pierre-d'Oléron (17310)
1er trimestre 2026
01 81 80 39 10
Présentation du programme "COEUR OLERON"
Devenez propriétaire de votre appart neuf : ON VOUS REMBOURSE JUSQU'A 500 euros PAR MOIS (1) pendant les 3 premières années + FRAIS DE NOTAIRE OFFERTS (2) jusqu'au 31 mars 2026.Préparez dès maintenant votre été 2026 sur l'île d'Oléron ! Emménagez pour cet été !
Au coeur de l'île, Saint-Pierre d'Oléron est LA commune où il fait bon vivre toute l'année. Son centre-ville, ses ruelles piétonnes, ses marchés et ses nombreuses boutiques en font un lieu de villégiature très apprécié.
Découvrez un dernier et vaste appartement 2 pièces de 54 m2 en rez-de-chaussée, comprenant un cellier et espace loggia, éventuellement transformable en 3 pièces pour une chambre ou bureau d'appoint. Ou encore en étage, d'un appartement 3 pièces de 52 ou 53 compact et très bien conçu pour qui veut profiter d'un nouveau lieu de vie idéal en toute saison ou d'une adresse pour votre résidence secondaire en bord de mer.
Notre solution de packs meublés "prêt à louer" en LMNP non-géré, vous offre un investissement pérenne et certain à cette adresse centrale et pratique.