259 000€
Appt. au 4ème
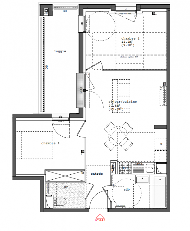
T3
53.6 m²
-
Bruges (33520)
3ème trimestre 2028
01 81 80 39 10
Présentation du programme "Mélisande"
OFFRES DE LANCEMENT : Jusqu'à 3 000€ de remise + frais de notaire offerts !*ESAPCE DE VENTE SUR PLACE SUR RDV : 4 avenue de Terrefort 33 520 Bruges !À Bruges, au cœur du nouveau quartier Terrefort, découvrez prochainement MÉLISANDE, une adresse où la nature s’harmonise avec l’énergie d’un quartier en plein renouveau.
À seulement 15 minutes de Bordeaux, la résidence intimiste MÉLISANDE vous place au cœur d’un quotidien pratique et agréable : tram E à 250m, gare TER à 350m, écoles, commerces et équipements culturels et sportifs à portée de main, ainsi que de nombreuses pistes cyclables.Faites de MÉLISANDE votre nouveau chez-vous : du 2 au 4 pièces, chaque appartement s’ouvre sur un généreux espace extérieur privatif, spacieuse loggia en étage ou jardin intimiste en rez-de-chaussée.Que ce soit pour habiter ou investir, MÉLISANDE s’adresse à ceux qui souhaitent profiter d’un quartier dynamique et bien situé, tout en bénéficiant d’un cadre de vie calme et préservé, loin de l’agitation des grands axes.Envie d’investir ? Cette résidence est éligible au nouveau dispositif d’investissement locatif JEANBRUN, pour constituer un patrimoine, réduire vos impôts et préparer votre retraite !
*Frais de notaire offerts + Remise de 1 000€ pour un T2, 2 000€ pour un T3 et 3 000€ pour un T4. Offre valable pour les 5 prochains réservataires, sous conditions de la signature d'un contrat de réservation jusqu'au 31/03/2026 et à la réitération de l’acte authentique de vente dans les délais contractuels.
Autres logements T3 du programme "Mélisande"
| Disponibilité | Prix | No | Genre | Pièces | Surface | Étage | Disponibilité | Prix | ||
|---|---|---|---|---|---|---|---|---|---|---|
| Voir | Disponible | 257 000€ | A01 | Appt. | T3 | 53.4m2 | 0-RDC | Disponible | 257 000€ | Voir |
| Voir | Disponible | 319 000€ | A03 | Appt. | T3 | 64.8m2 Le bon plan | 0-RDC | Disponible | 319 000€ | Voir |
| Voir | Disponible | 267 000€ | A15 | Appt. | T3 | 58.7m2 | 1er | Disponible | 267 000€ | Voir |
| Voir | Disponible | 309 000€ | A23 | Appt. | T3 | 64.8m2 | 2ème | Disponible | 309 000€ | Voir |
| Voir | Disponible | 269 000€ | A25 | Appt. | T3 | 58.7m2 | 2ème | Disponible | 269 000€ | Voir |
| Voir | Disponible | 277 000€ | A27 | Appt. | T3 | 59.9m2 | 2ème | Disponible | 277 000€ | Voir |
| Voir | Disponible | 249 000€ | A31 | Appt. | T3 | 53.4m2 | 3ème | Disponible | 249 000€ | Voir |
| Voir | Disponible | 309 000€ | A33 | Appt. | T3 | 64.8m2 | 3ème | Disponible | 309 000€ | Voir |
| Voir | Disponible | 275 000€ | A35 | Appt. | T3 | 58.7m2 | 3ème | Disponible | 275 000€ | Voir |
| Voir | Disponible | 279 000€ | A37 | Appt. | T3 | 59.9m2 | 3ème | Disponible | 279 000€ | Voir |
| Voir | Disponible | 309 000€ | A43 | Appt. | T3 | 64.9m2 | 4ème | Disponible | 309 000€ | Voir |
| Voir | Disponible | 279 000€ | A45 | Appt. | T3 | 58.7m2 | 4ème | Disponible | 279 000€ | Voir |
| Voir | Disponible | 279 000€ | A47 | Appt. | T3 | 60m2 | 4ème | Disponible | 279 000€ | Voir |
| Voir | Disponible | 277 000€ | B15 | Appt. | T3 | 58.7m2 | 1er | Disponible | 277 000€ | Voir |
| Voir | Disponible | 269 000€ | B17 | Appt. | T3 | 59.9m2 | 1er | Disponible | 269 000€ | Voir |
| Voir | Disponible | 257 000€ | B21 | Appt. | T3 | 53.6m2 | 2ème | Disponible | 257 000€ | Voir |
| Voir | Disponible | 307 000€ | B23 | Appt. | T3 | 64.5m2 | 2ème | Disponible | 307 000€ | Voir |
| Voir | Disponible | 277 000€ | B25 | Appt. | T3 | 58.7m2 | 2ème | Disponible | 277 000€ | Voir |
| Voir | Disponible | 279 000€ | B27 | Appt. | T3 | 60.1m2 | 2ème | Disponible | 279 000€ | Voir |