96 700€
Appt. au 8ème
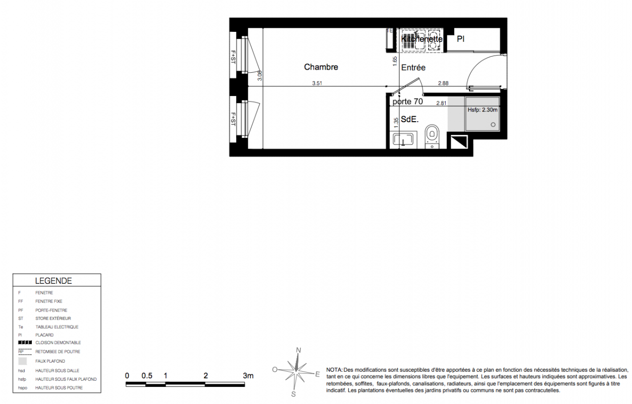
Studio
18.43 m²
Ouest
Nantes (44000)
1er trimestre 2025
01 81 80 39 10
Présentation du programme "Résidence Étudiante Odalys Campus Île De Nantes"
Descriptif de la résidenceDans un quartier récent, Odalys Campus Île de Nantes se trouve en bordure de la Loire. Facilement accessible à pied, tu trouveras à proximité de la résidence des commerces, supermarchés et même une salle de sports. Tu seras également proche du centre-ville de Nantes situé à moins de 2 km : les transports en commun (bus, tram, busway) seront pratiques pour y accéder. Dans un rayon de 500 m, tu rejoindras les premières facultés de la ville. La gare SNCF de Nantes à 3 km te permettra de partir rendre visite à tes proches durant les vacances.Descriptif gestionnaireFondé en 1998, le Groupe Odalys occupe actuellement une position de premier plan sur le marché de l'hébergement touristique en France, proposant 400 établissements répartis entre la mer, la montagne, la campagne et le cœur des villes. La présence du groupe s'étend également en Espagne, au Portugal et en Italie. Au fil de sa croissance, le Groupe Odalys a développé une organisation articulée autour de trois domaines d'activité principaux : la commercialisation de ses hébergements, la gestion de ses exploitations et l'administration de biens au service de ses clients. + DU GESTIONNAIRE - Des résidences localisées au sein des stations touristiques les plus attractives, que ce soit en bord de mer, à la montagne ou à la campagne : France, Corse, Espagne, Italie et Portugal. - Des appartements assurant une qualité d'accueil irréprochable, avec une gamme étendue de services inclus ou disponibles à la carte.Arguments de venteNantes est une ville réputée pour sa culture, son développement économique et sa qualité de vie Avec plus de 50 000 étudiants, répartis entre l'Université et les Grandes Ecoles, elle est la première agglomération étudiante des Pays de la Loire Le projet est situé sur l'Ile de Nantes, c'est le quartier "branché" de Nantes. Nommé Polaris, cet ambitieux projet est composé de 6 bâtiments organisés autour de rues, places et jardins Le groupe Vatel, école internationale de management, d'hôtellerie et de tourisme, a choisi de s'implanter à proximité immédiate de notre résidence étudiante (450 étudiants prévus sur le site) La résidence est idéalement positionnée. 8000 étudiants sont recensés dans un rayon de 2 km (ENSA, ERBAN, ENACOM...) Grâce à un réseau de transports en commun dense et diversifié (ligne de Tram 2, Busway ligne 4...), le centre historique de Nantes est facilement accessible Moderne et fonctionnelle, la résidence étudiante Polaris bénéficie d'...