Prix
328 720€
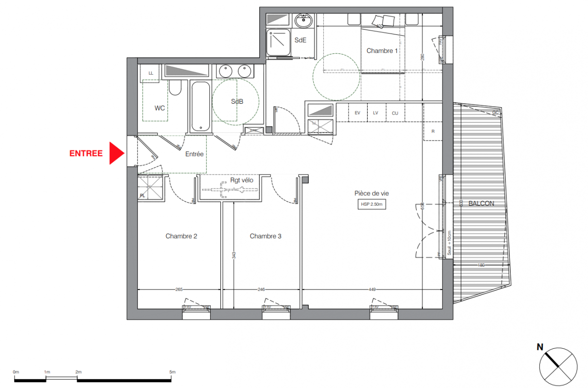
Type
Appt. au 0-RDC
Pièces
T4
Surface
81 m²
Exposition
-
Ville
Avrillé (49240)
Livraison
4ème trimestre 2027
Informations
01 81 80 39 10

Présentation du programme "LES PASSERELLES"

Programme neuf Avrillé - 49240

Autres logements T4 du programme "LES PASSERELLES"

Disponibilité Prix Genre Pièces Surface Étage
Voir
Disponible
338 957€ Appt. T4 81m2 0-RDC
DO NOT CLICK