Ce lot n’est plus disponible chez VIANOVA ou est vendu.

Vous pouvez revenir dans 24h pour vérifier le stock à jour ou contacter un conseiller Vianova pour vérifier le stock en direct.
Vous pouvez également continuer votre recherche sur notre site « ici ».

Prix
137 400€
Type
Appt. au 3ème
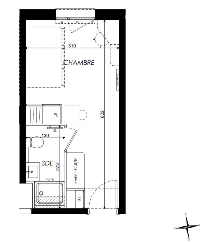
Pièces
Studio
Surface
18.4 m²
Exposition
Est
Ville
Avrillé (49240)
Livraison
3ème trimestre 2027
Informations
01 81 80 39 10

Présentation du programme "Studio 142"

Une résidence étudiante idéale, au coeur du campus d'Angers
Investir dans une résidence étudiante à Angers constitue une
opportunité rare, alliant qualité de vie exceptionnelle et rentabilité durable.
Classée première ville de France pour sa qualité de vie et reconnue comme la
plus verte du pays, Angers séduit par son environnement privilégié, à seulement
35 minutes de Nantes et 1h30 de Paris en TGV.Cette résidence à taille humaine, idéalement située à 20
minutes du centre-ville en tramway ou à vélo, elle propose des appartements
neufs parfaitement desservis par les nouvelles lignes B et C du tramway, mises
en service en 2023. Le développement ambitieux des projets urbains, notamment
l’aménagement des quais et l’extension du réseau de transports, renforce encore
l’attractivité de la métropole et accompagne sa dynamique économique.Cet investissement offre également de solides avantages
financiers et fiscaux : récupération de la TVA (20 %), loyers garantis pendant
9 ans via un bail commercial sécurisé, fiscalité optimisée grâce à
l’amortissement du bien et réduction significative de l’imposition sur les
revenus locatifs. La gestion locative est intégralement confiée à un
professionnel, garantissant sérénité et rentabilité.Entièrement gérés par Néoresid filiale du Groupe Kaufman et
Broad, ils constituent un placement exemplaire sans contrainte locative. * Source : Google Maps











 

Autres logements Studio du programme "Studio 142"

Disponibilité Prix Genre Pièces Surface Étage
Voir
Disponible
125 305€ Appt. Studio 18.32m2 1er
Voir
Disponible
131 905€ Appt. Studio 18.19m2 4ème
Voir
Disponible
131 936€ Appt. Studio 18.28m2 2ème
Voir
Disponible
131 936€ Appt. Studio 18.75m2 2ème
Voir
Disponible
141 536€ Appt. Studio 18.75m2 4ème
DO NOT CLICK